EasyManua.ls Logo

Valtra 6650 - Page 703

Valtra 6650
1361 pages
Print Icon
To Next Page IconTo Next Page
To Next Page IconTo Next Page
To Previous Page IconTo Previous Page
To Previous Page IconTo Previous Page
Loading...
654
Model Code Page
41. Clutch
1. 4. 1997
6000--8750 411 6
8. 11. 1990
10 mm
0,01 mm
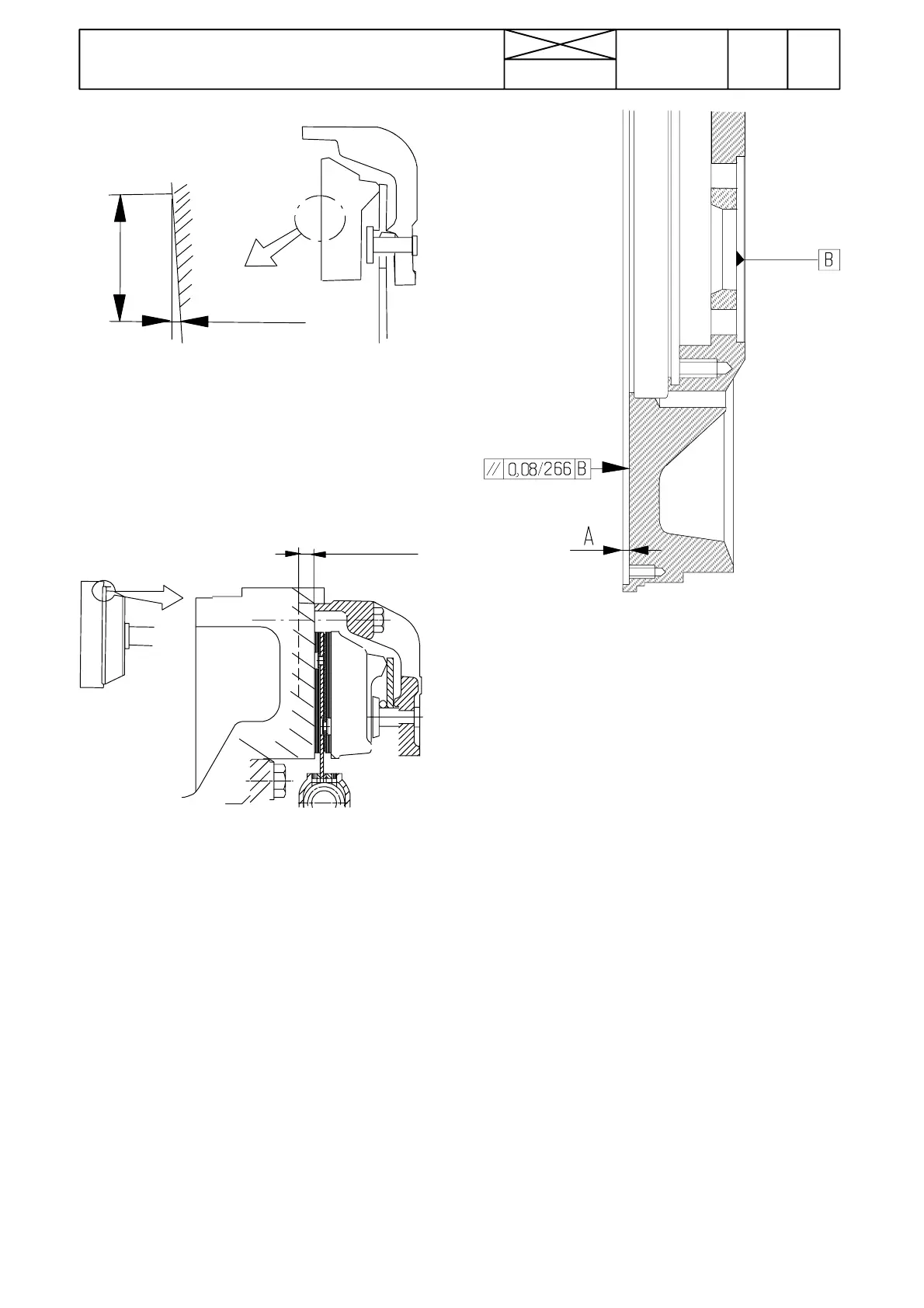
Checking concavity of pressure plate
A new pressure plate is flat to slightly co ncave, max. 0,01/10
mm: convexity, i.e. the reverse state, must not occur. The rea-
son for the concave surface is to allow engagement to start at
the outer edge of the lining where the disc is least sensitive to
slipping. A grooved or otherwise deformed clutch must be
changed.
max. 2 mm (4 mm)
Machining flywheel
The flywheel c an be machined 2 mm without any further ac-
tion. For additional machining the holes for the clutch attach-
ing bolts must also be deepened. The maximum machining
of the flywheel is 4 mm.
Important! When machining the flywheel, it is important to
observe that the clutch surface and the flywheel fixing surface
are parallel.
Measurement A on a new flywheel is 0,3 mm, and max
allowable value is 10±0,3 mm.

Table of Contents

Related product manuals