EasyManua.ls Logo

Videx 2291A - Cabinet Dimensions and Component Layout

Videx 2291A
36 pages
Print Icon
To Next Page IconTo Next Page
To Next Page IconTo Next Page
To Previous Page IconTo Previous Page
To Previous Page IconTo Previous Page
Loading...
CONTROL CABINETS - TECHNICAL MANUAL EN-UK - V.1.3 - 14/07/16
5
VI
DE
X
AUDIO & VIDEO CONTROL CABINETS
WARNING!
ISOLATE MAINS
BEFORE REMOVING
COVER
12Vdc
7aH Battery
LN
230 VOLTS
FUSE VALUE
T3.15A
LED1
LED2
LED3
LED5LED4
LED
RW1
BAT OUT
FROM PREVIOUS BOARD
GND+12 L BSY TRD
V1
V2
S
L
GND+12 L BSY TRD
V1
V2
S
L
PHONES OR NEXT BOARD
GND+12 L BSY TRD
V1
V2
S
L
GND+12 L BSY TRD
V1
V2
S
L
DOOR PANEL 3 DOOR PANEL 1
DOOR PANEL 2 DOOR PANEL 4
FUSE 4
FUSE 2
FUSE 1
FUSE 3
V
X
123
-R
2
GND +12LBSYTRD
V
1
V
2+2
0
GND+12 L BSY TRD
V1
V
2
+
2
0
Mode Up Down Select
On/Off
VIDEX
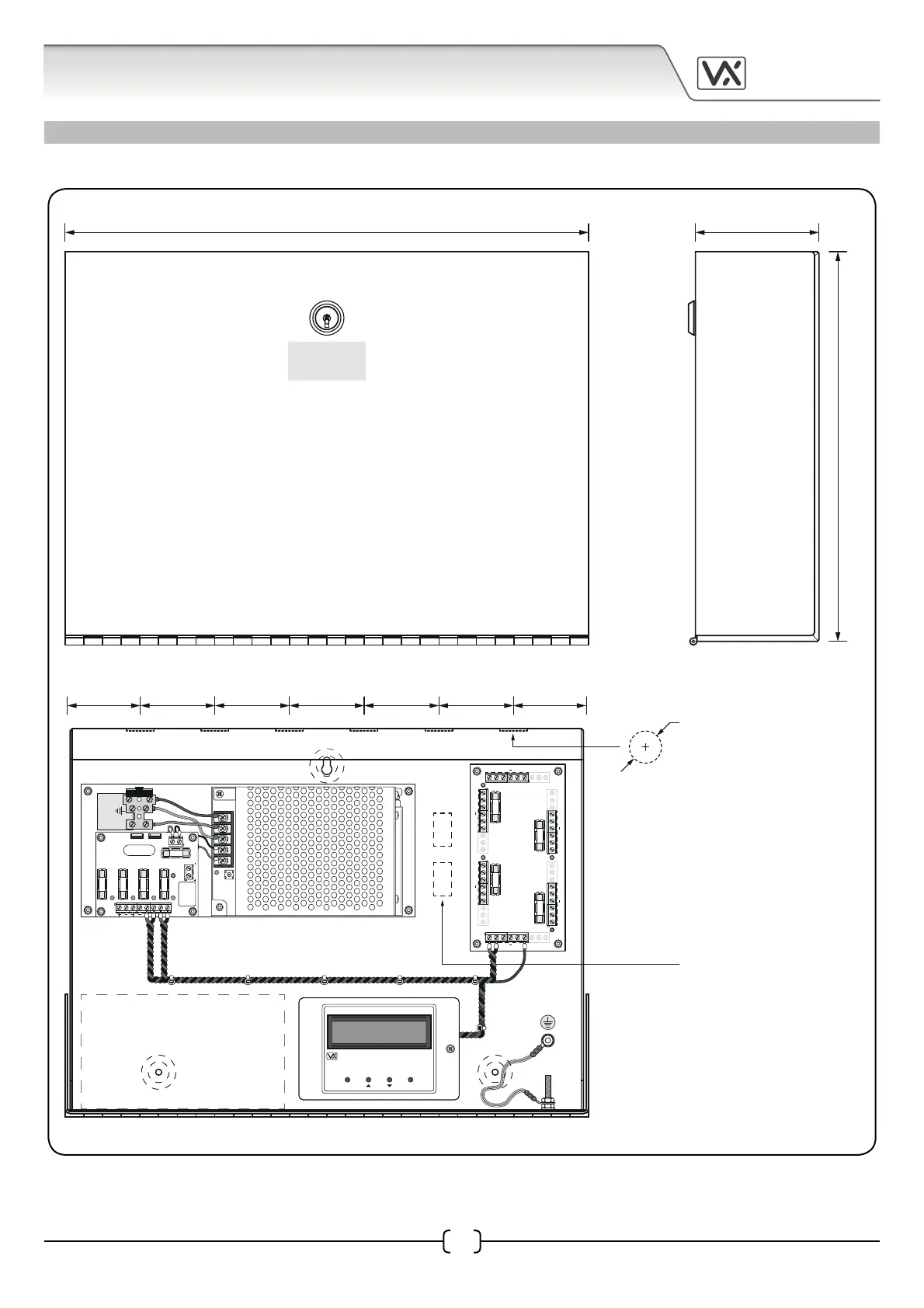
360mm 75mm
265mm
6x 20mm diameter
knockouts for incoming
and outgoing cables
located on the top and
bottom side of the
cabinet
2x 13.5mm x 25mm
knockouts for incoming
and outgoing cables
located on the base
plate of the cabinet
50mm 52mm 52mm 52mm 52mm 52mm 50mm
CABINET DIMENSIONS AND COMPONENT LAYOUT
2291A (CAB2) Cabinet Dimensions
INTERNAL CABINET LAYOUT