EasyManua.ls Logo

Videx 2291A - Page 8

Videx 2291A
36 pages
Print Icon
To Next Page IconTo Next Page
To Next Page IconTo Next Page
To Previous Page IconTo Previous Page
To Previous Page IconTo Previous Page
Loading...
CONTROL CABINETS - TECHNICAL MANUAL EN-UK - V.1.3 - 14/07/16
8
VI
DE
X
AUDIO & VIDEO CONTROL CABINETS
LN
230 VOLTS
FUSE VALUE
T3.15A
LN
230 VOLTS
FUSE VALUE
T3.15A
LED1
LED2
LED3
LED5LED4
LED
RW1
BAT OUT
ART. 893N1
POWER SUPPLY
Made in Italy
PRI.
OUT.
230V 0
20VDC 1A
50/60Hz
230V 0 -C +C + +D
12345
ON
Art. VX2206N
Made in Italy
BLOCK CONTROLLER
VIDEX
2206N-1.41
SW1 JP5 JP4 JP3 JP2
Balanced Video Signal
75 Ohm Termination OFF
Coax Video Signal
75 Ohm Termination ON
2206N
JP5 JP4 JP3 JP2
V/V1P V2 V/V1 V2 V/V1V2PV/V1LV2LV/V10V20
+12BSBOLBMB
GND+12 L BSY TRD V1 V2
FROM PREVIOUS BOARD
GND+12 L BSY TRD V1 V2SL
GND+12 L BSY TRD V1 V2SL
GND +12LBSYTRDV1V2
PHONES OR NEXT BOARD
GND+12 L BSY TRD V1 V2SL
GND+12 L BSY TRD V1 V2SL
DOOR PANEL 3 DOOR PANEL 1
DOOR PANEL 2 DOOR PANEL 4
FUSE 4
FUSE 2
FUSE 1
FUSE 3
DOOR 1
DOOR 2
DOOR 3
DOOR 4
+20
+20
VX123-R2
Mode Up Down Select
On/Off
VIDEX
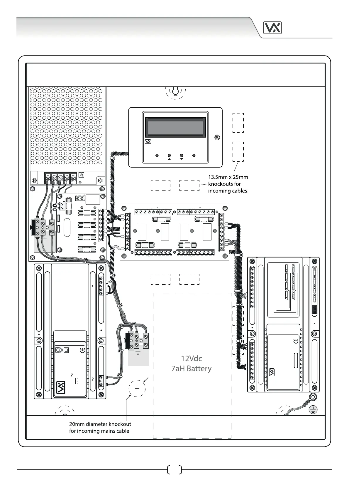
INTERNAL CABINET LAYOUT
2291AB and 2291VB (CAB1) Cabinet Layout