EasyManua.ls Logo

Viessmann Vitocal 100-A - Page 10

Viessmann Vitocal 100-A
23 pages
Print Icon
To Next Page IconTo Next Page
To Next Page IconTo Next Page
To Previous Page IconTo Previous Page
To Previous Page IconTo Previous Page
Loading...
9
6020938-02
1L1
3L2
5L3
1
3NO
A1
2T1
4T2
6T3
14NO
A2
3
2
1
4
3
2
1
KM
L
L
L
4
6
1
1
2
2
3
3
42
43
41
5
C
2
TH2
C
1
TH1
8
7
Rete / Mains
230Va c
1Ph-N-PE
50Hz
I
d
L
I
d
N
PE
PE
L
N
QD1
L
N
PE
ACT
Internal Terminal Block
i-32V5 / i-HWAK V4
Heating Resistor [2-3-4,5 kW]
7
NOTE da leggere prima dell'installazi one
NOTES Read before installation
Componente
Component
Note
Descrizione
Description
QD1
#
Int errutto re di dispersione verso terra /
Earth leakage circuit breaker
QD2
#
Int errutto
re di dispersione verso terra /
Earth leakage circuit breaker
KM
Contatto re /
Contactor
QE1
Quadro elettrico 1 /
Swit chboard 1
QE2
Quadro elettrico 2 /
Swit chboard 2
Punto di massa /
Point of ground
Morsetto a molla /
Spring terminal
Th1
Termostato automatico di sicurezza /
Automatic Safety Thermostat
Th2
Termostato manuale di sicurezza
/
Manual Safety Thermosta t
F1
Fusibili /
Fuses
Collegamenti a cura dell'installatore /
Connections by the inst aller
AEH
# Da reperire in loco / Obtain locally
X-6.1
QE2
Rete / Mains
230Va c
1Ph-N-PE
50Hz
I
d
L
I
d
N
PE
QD2
i-32V5 / i-HWAK V4
E' obbligatorio Installare, a monte d i ogni uni, un idoneo dispositivo di protezione e sezionamento dell'energia
elettrica con curva caratte ristica ritardata, con un adeguato potere di interruzione e protezione diff erenziale.
Obligation to install, in front of each unit, a suitable protective device and disconn ection of electricity with delayed
characteristic curve, with an adequate breaking and differential protection .
La legenda e lo schema riportano simboli non necessariamente presen t i nel circuito
The legend and diagram shows symbols not necessarily present in the circuit
ACT
QE1
5
W1
W2
N
41
W3
PE
W4
L
PE
F1
F1
Fuses R 2 kW:
2 x 10 A
10.3x38 gG
Fuses R 3-4,5 kW:
2 x 20 A
10.3x38 gG
#
#
2 431 5 6 7 8
9 10 11
12 13 14 15 16 17
18
1900
A
2 431 5 6 7 8
9 10 11
12 13 14 15 16 17
18
1900
B
C
D
E
F
G
H
I
J
K
L
M
01 Sistemazione fil i 13/ 11/2019
00 First emission 05/0 6/ 2017 A.B. A.B. A.B.
Rev
Item
Descrizione modifiche
Description of changes
D a ta
Date
Disegnato
Drowing by
Verificato
Verif ied by
Approvato
Approved by
Titol o / Title Schema elettrico ACT 1ph R 2-3-4,5 kW
Codice / Code
Ogget
to / Ob
ject Sc
he ma elettr
ico / Electr ic
al
drawing
Foglio
Sheet
1
di
of
1
Tutt e le inform
azion i con t enut e nel presente do cument o sono di prop rietà esclusi
va d ella Advan tix s.p.a e non po ssono essere r iprod ot te, divulga te o
com unqu e ut i
lizzate senza la sua prev ent iva a utorizzazione scrit t a. La societ à p ro
priet ar ia tutela i pro pri d irit t i a norm a di legg e
All tecnical information contained in this document is exclusive pro pert y of Advantix s.p.a. and may neither be used nor disclosed
withou t its prior writen con sent. The society will guard own rights by law in for ce
Mod. ADV.00
M.P. A.B. A.B.
02
Aggiornamento
16/ 06/ 2020
K.G. A.B. A.B.
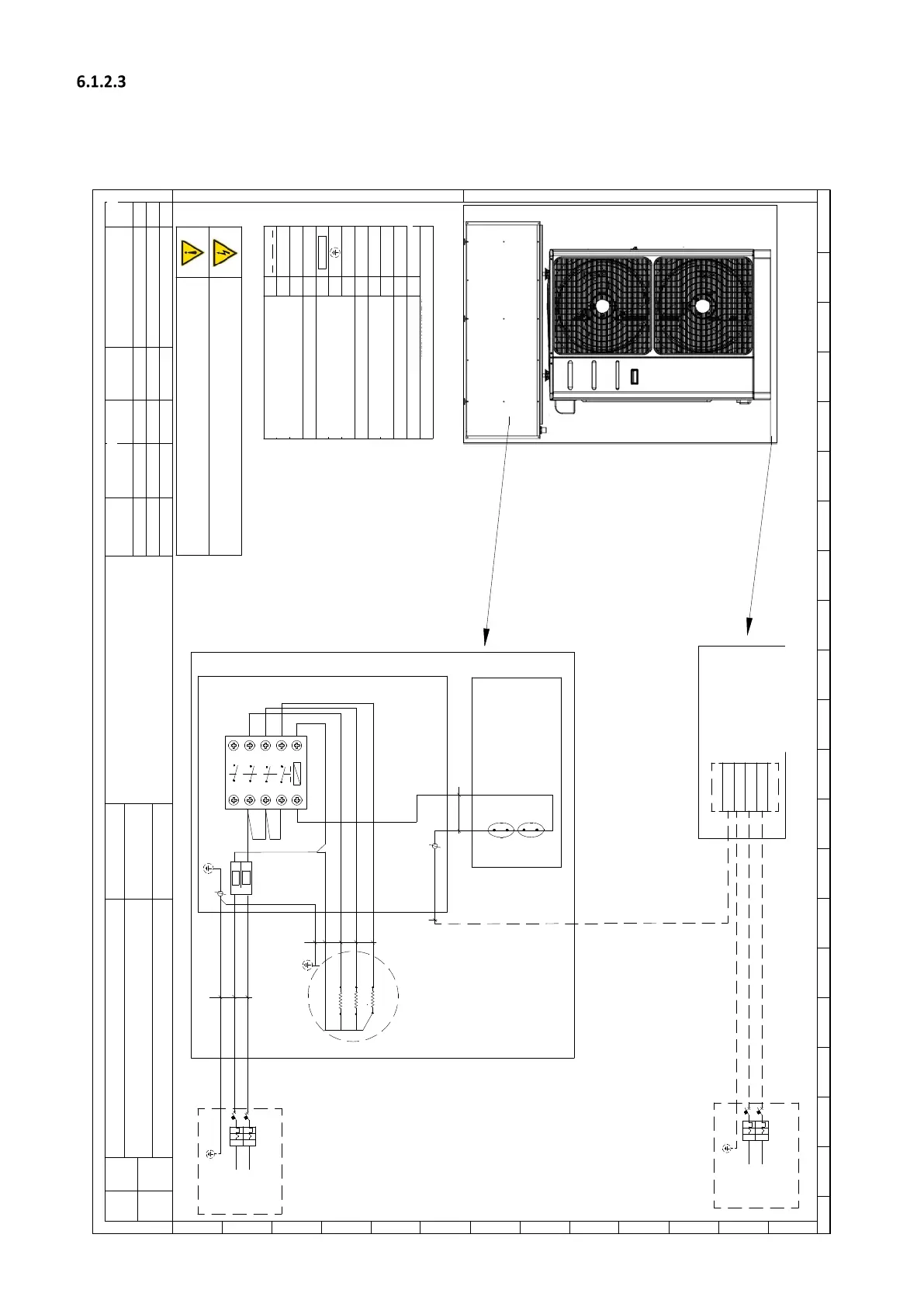
ELECTRIC PANEL 2 FOR ACT WITH 2 3 4.5 kW HEATERS
The electric panel 2 is composed of:
A contactor to control the power supply of the electric heater;
Fuses for the protection of the electrical circuit.
All technical information contained in this document is exclusive property of Advantix s.p.a. and may neither be reproduced or
disclosed without its prior written conse nt. The company will guard its rights p ursuant to law
Item
First emission
Description of changes
Date
Drawing by
Verified by
Approved by
Titolo / Title
Sheet
of
Codice / Code
Oggetto / Object
Wiring diagram ACT 1ph R 2 - 3 - 4.5 kW
Schema elettrico / Electrical drawing
Rete / Mains
Rete / Mains
Heating Resistor [2-3-4.5kW]
Internal Terminal Block
NOTES Read before installation
Component
Description
Notes
Interruttore di dispersione verso terra / Earth leakage switch
Interruttore di dispersione verso terra / Earth leakage switch
Contattore / Contactor
Quadro elettrico 1 /
Electric panel 1
Quadro elettrico 2 /
Electric panel 2
Punto di masa / Earth point
Morsetto a molla / Spring terminal
Termostato automatico di sicurezza / Automatic safety thermostat
Termostato manuale di sicurezza / Manual safety thermostat
Fusibili / Fuses
Collegamenti a cura dell'installatore / Connections performed by
installer
To get on-site
It is mandatory to install upstream of each unit a suitable protective device and power disconnector, with delayed
characteristic curve, with an adequate breaking capacity and residual current protection.
The key and diagram show symbols which are not necessarily present in the circuit
ACT
ACT
Wire arrangement
Update

Related product manuals