EasyManua.ls Logo

Viessmann Vitocal 100-A - Page 11

Viessmann Vitocal 100-A
23 pages
Print Icon
To Next Page IconTo Next Page
To Next Page IconTo Next Page
To Previous Page IconTo Previous Page
To Previous Page IconTo Previous Page
Loading...
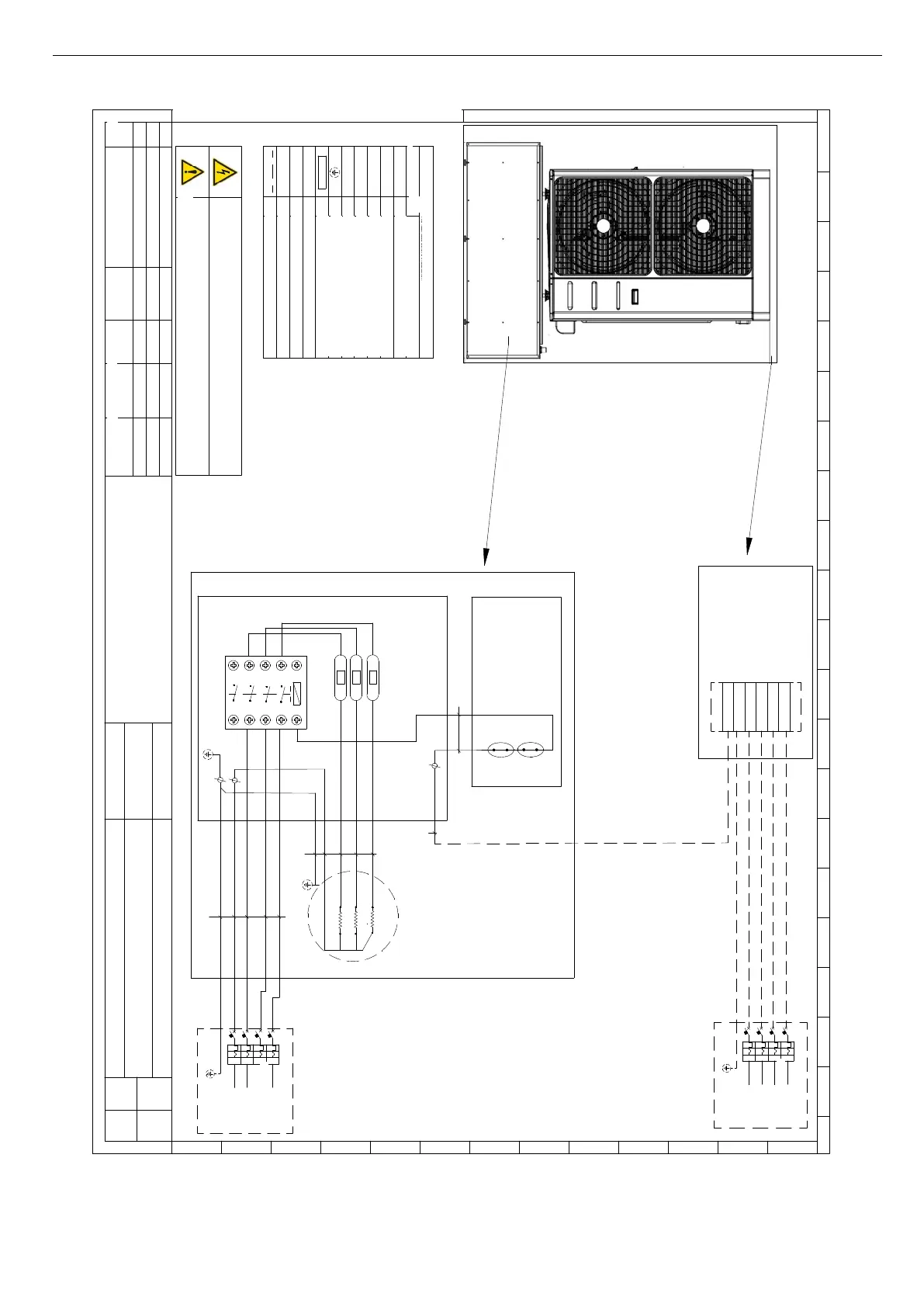
ACT Technical water inertial storage tanks
10
6020938-02
1L1
3L2
5L3
13NO
A1
2T1
4T2
6T3
14NO
A2
F1
F2
F3
3
2
1
3
2
1
13
12
11
KM
L3
L2
L1
N
6
1
1
2
2
3
3
42
43
41
5
C
2
TH2
C
1
TH1
8
7
R
ete / Mains
400Va c
3Ph-N-PE
50Hz
PE
PE
L1
N
L1
N
PE
ACT
Internal Terminal Block
i-32V5 / i-HWAK
V4
Heating Resistor [2-3-4,5 kW]
7
NOTE da leggere prima dell'installazione
NOTES Read before installation
Componente
Component
Note
Descrizione
Description
QD1
#
Int errutto re di dispersione verso terra
/
Earth leakage circuit breaker
QD2
#
Int errutto re di dispersione verso terra
/
Earth leakage circuit breaker
KM
Contatto re
/
Contactor
QE1
Quadro elett rico 1
/
Swit chboard 1
QE2
Quadro elett rico 2
/
Swit chboard 2
Punto di massa
/
Point of ground
Mor
setto a mol la
/
Spring terminal
Th1
Termostato automatico di sicurezza
/
Automatic Safet y Thermostat
Th2
Termostato manuale di sicurezza
/
Manual Safety Thermost at
F1-F2-F3
Fusibili
/
Fuses
Collegamenti a cura del l'inst al latore
/
Connections by the installer
AEH
# Da reperire in loco / Obtain locally
X-6.1
QE2
Rete / Mains
400Va c
3Ph-N-PE
50Hz
I
d
L1
I
d
N
PE
QD2
i-32V5 /
i-HWAK V4
E' obbligatorio installare, a monte di ogni uni, un idoneo dispositi vo di protezione e sezionamento dell'energia
elettrica con curva caratteristica ritardata, con un adeguato potere di interruzione e protezione diff erenzia le.
Obligation to install, in front of
each unit , a
suitable protective device and discon
nection of electricity wit
h delayed
characteristic curve, with an ad
equate brea
king and differential prot ection .
La legenda e lo schema riportano simboli non necessariamente presenti nel circuito
The legend and diagram show s symbols not necessarily present in the circuit
ACT
QE1
5
W1
W2
N
W3
PE
W4
PE
I
d
L3
I
d
L2
I
d
L1
I
d
N
QD1
I
d
L3
I
d
L2
#
#
L2
L3
L2
L3
41
Fuses R 2 kW:
3 x 4 A 5x20 F
Fuses R 3-4,5 kW:
3 x 8 A 5x20 F
2 431 5 6 7 8 9 10
11 12 1
3 14 15 16 17 18 1900
A
2 431 5 6 7 8 9 10
11 12 1
3 14 15 16 17 18 1900
B
C
D
E
F
G
H
I
J
K
L
M
01
Sis temazione fili
13/11/2019
00 First emission 05/06/2017 A.B. A.B. A.B.
Rev
Item
Descrizione modifiche
Description of changes
D a ta
Date
Disegnato
Drowing by
Verificato
Verif ied by
Approvato
Approved by
Titol o / Tit
le
Schema elettrico ACT 3ph R 2-3-4,5 kW
Codice / Cod
e
Oggetto / Object Schema elettrico / Electr ical drawing
Foglio
Sheet
1
di
of
1
Tutt e le inf ormazion i contenu te nel presente docu ment o sono di pro prietà esclusiva della Adv antix s.p.a e non po ssono essere riprod ot t e, divu lgat e o
com unqu e utilizzate senza la sua p rev ent iva aut o rizzazion e scritt a. La societ à prop rietaria tut ela i propri dirit t i a n orma di legge
All tecnical infor m
ation cont ained in this do cume nt is exclusive prop erty of Advantix s.p.a. and may neither b e used nor d isclosed
witho ut its pr ior w
riten consent. The society will gua rd o wn righ ts by law in force
Mod. ADV.00
M.P. A.B. A.B.
02
Aggiornamento
16/06/2020
K.G.
A.B. A.B.
All technical information contained in this document is exclusive property of Advantix s.p.a. and may neither be reproduced or
disclosed without its prior written conse nt. The company will guard its rights p ursuant to law
Item
First emission
Description of changes
Date
Drawing by
Verified by
Approved by
Titolo / Title
Sheet
of
Codice / Code
Oggetto / Object
Wiring diagram ACT 3ph R 2 - 3 - 4.5 kW
Schema elettrico / Electrical drawing
Rete / Mains
Rete / Mains
Heating Resistor [2-3-4.5kW]
Internal Terminal Block
NOTES Read before installation
Component
Description
Notes
Interruttore di dispersione verso terra / Earth leakage switch
Interruttore di dispersione verso terra / Earth leakage switch
Contattore / Contactor
Quadro elettrico 1 /
Electric panel 1
Quadro elettrico 2 /
Electric panel 2
Punto di masa / Earth point
Morsetto a molla / Spring terminal
Termostato automatico di sicurezza / Automatic safety thermostat
Termostato manuale di sicurezza / Manual safety thermostat
Fusibili / Fuses
Collegamenti a cura dell'installatore / Connections performed by
installer
To get on-site
It is mandatory to install upstream of each unit a suitable protective device and power disconnector, with delayed
characteristic curve, with an adequate breaking capacity and residual current protection.
The key and diagram show symbols which are not necessarily present in the circuit
ACT
ACT
Update
Wire arrangement

Related product manuals