EasyManua.ls Logo

Wacker Neuson G 240

Wacker Neuson G 240
200 pages
To Next Page IconTo Next Page
To Next Page IconTo Next Page
To Previous Page IconTo Previous Page
To Previous Page IconTo Previous Page
Loading...
wc_si000265es.fm 12
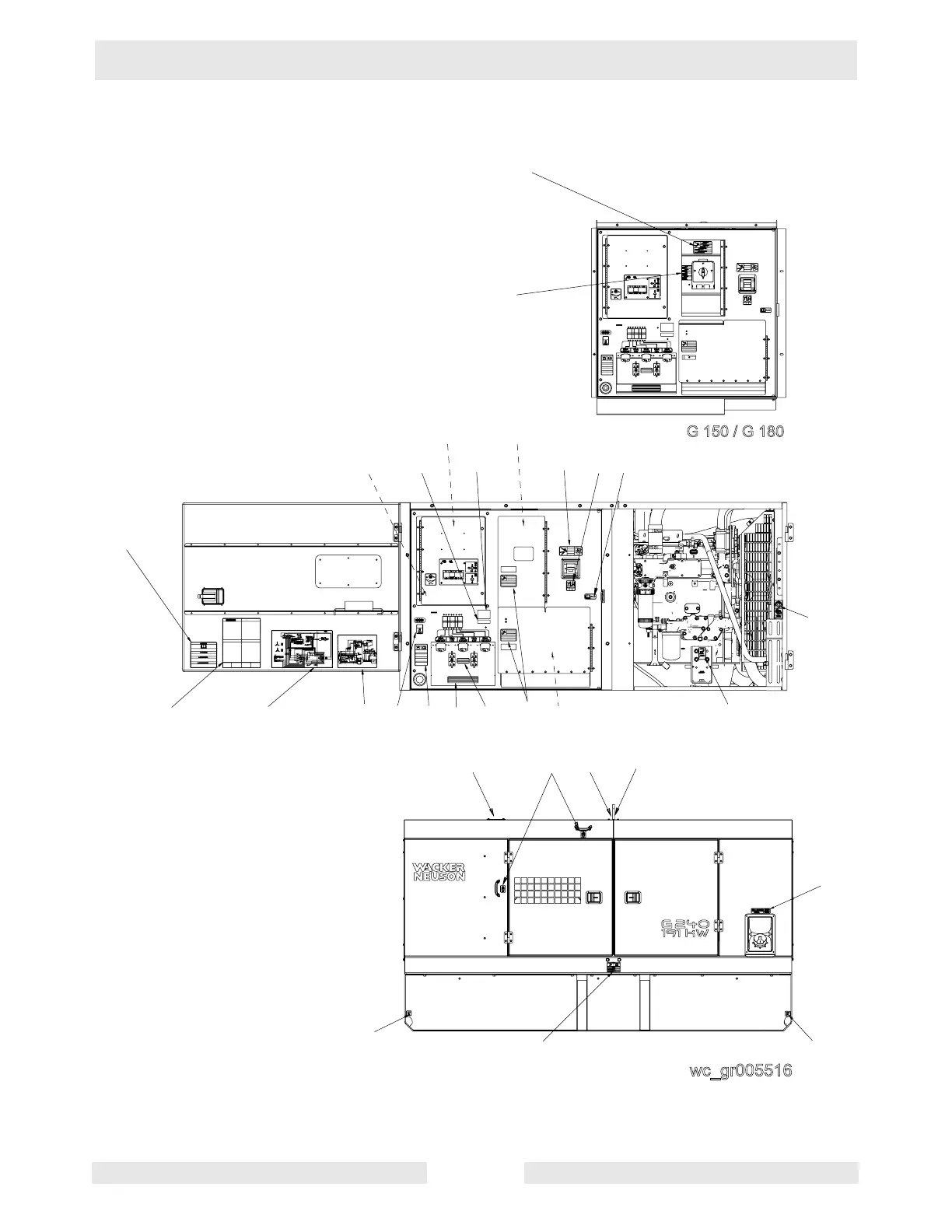
Información de seguridad G 150 / 180 / 240
1.5 Ubicación de las calcomanías
G 150 / G 180
wc_gr005516
E
D
Y
P
C
X
E
S,T
BB
E
AA
Z N,CC
O
V
UUB FF
Q
R
DD L EE W
R
A
F
H
J
Plantas de luz wacker G 240s | VENTA y RENTA
Autek Maquinaria ¡Llámenos! (55) 5392-7077

Table of Contents

Other manuals for Wacker Neuson G 240