EasyManua.ls Logo

WALTCO WDV - Cycle Counter Diagrams; Single Power Unit

WALTCO WDV
48 pages
Print Icon
To Next Page IconTo Next Page
To Next Page IconTo Next Page
To Previous Page IconTo Previous Page
To Previous Page IconTo Previous Page
Loading...
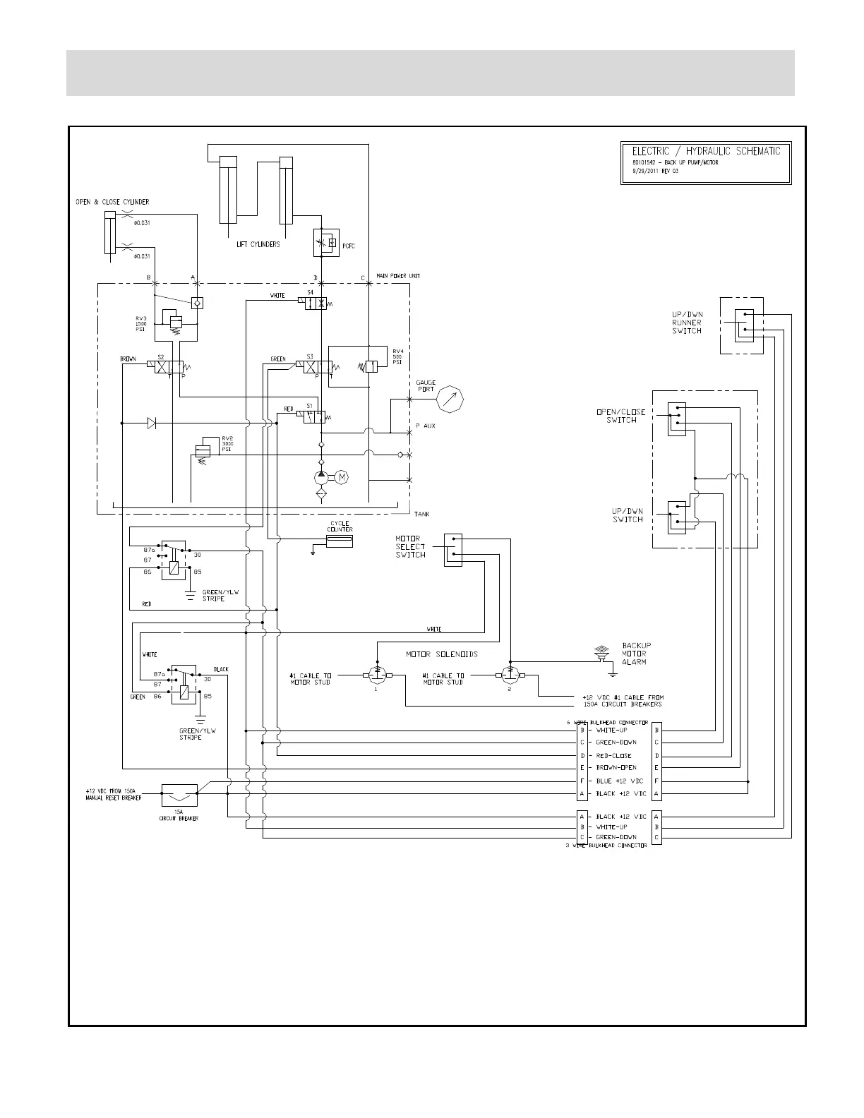
Cycle Counter Schematics
POWER UNIT HYDRAULIC/ELECTRICAL SCHEMATIC - SINGLE POWER UNIT – POWER DOWN
REF 801015
42
REV04
24