EasyManua.ls Logo

WarmFlow Utility U120HE - One Pipe Lift System

Default Icon
92 pages
Print Icon
To Next Page IconTo Next Page
To Next Page IconTo Next Page
To Previous Page IconTo Previous Page
To Previous Page IconTo Previous Page
Loading...
Page 49
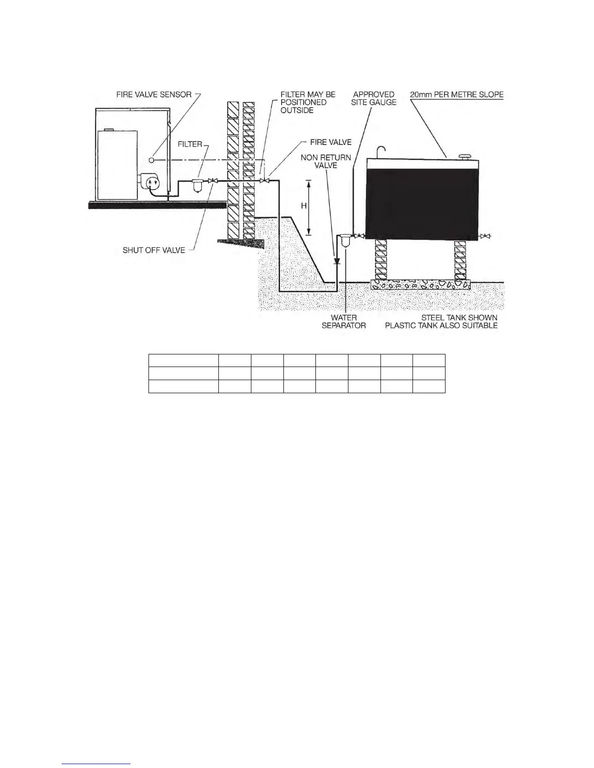
7.4 One Pipe Lift System
Total Maximum Pipe Length (m)
Head H(m)
0.0
0.5
1.0
1.5
2.0
3.0
3.5
ID 8mm
35
30
25
20
15
8
6
ID 10mm
100
100
100
90
70
30
20
Note: The pump vacuum should not exceed a maximum of 0.4 bar. Above this,
gas is released from the oil thus leading to burner lockout.

Table of Contents

Related product manuals