EasyManua.ls Logo

Wayne HSG400 - Page 50

Wayne HSG400
52 pages
Print Icon
To Next Page IconTo Next Page
To Next Page IconTo Next Page
To Previous Page IconTo Previous Page
To Previous Page IconTo Previous Page
Loading...
50
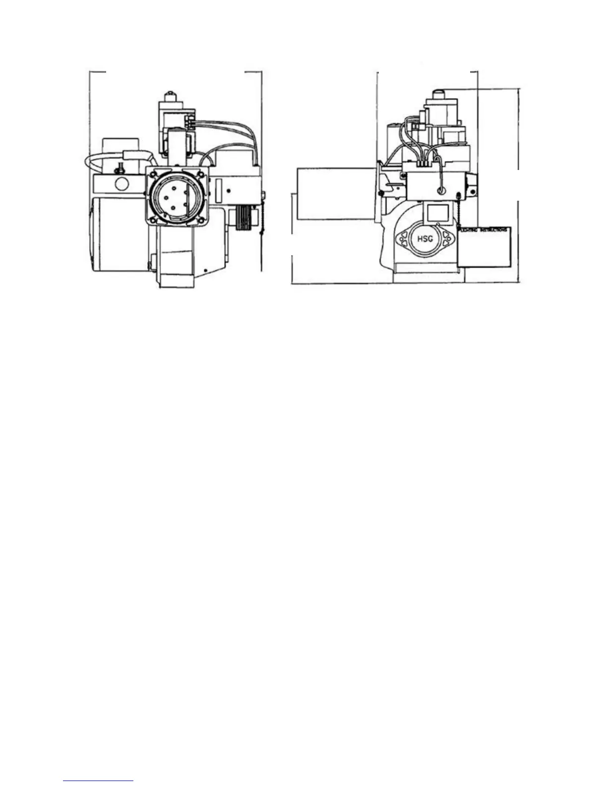
Figure 33: Outer Dimensions of HSG Series Burner
13.2 (335 mm) REF.
7.7 in (195mm)
7 in (178 mm)
15.25 in
(377 mm)

Other manuals for Wayne HSG400

Related product manuals