EasyManua.ls Logo

Webasto Thermo Top E - Table of Contents

Webasto Thermo Top E
48 pages
Print Icon
To Next Page IconTo Next Page
To Next Page IconTo Next Page
To Previous Page IconTo Previous Page
To Previous Page IconTo Previous Page
Loading...
Thermo Top E and Z/C 7 Circuit Diagrams
703
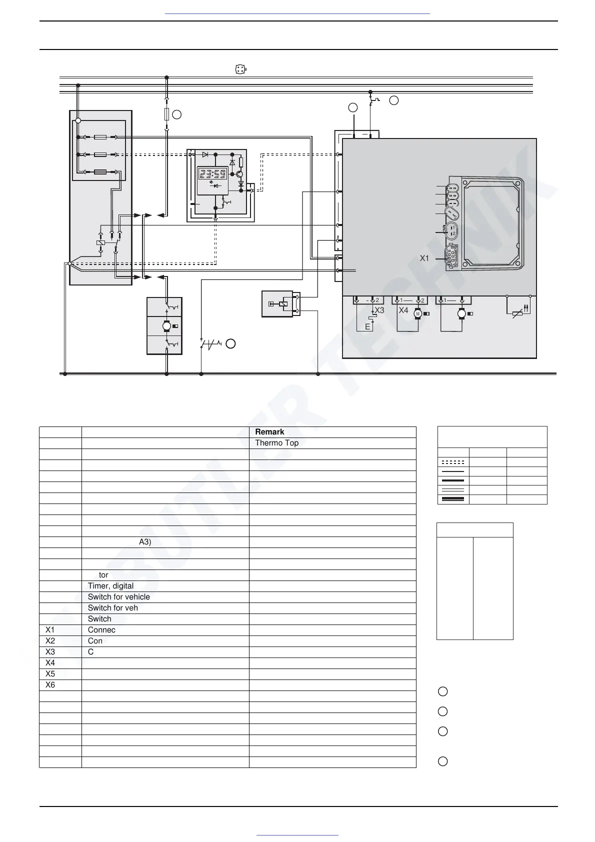
Fig. 703 Automatic Switching Circuit for Thermo Top E and Z/C, 12 V Timer
M
M M
(75) 15
61
30
rt
sw
br
br
br
br
sw
sw
ge
bl
87a
85
86
87
30
31
br
I max. = 0,5 A
gn/ws
rt
rt
rt
rt
br
br
5
3
2
1
2
1
4
6
22
11
ϑ
ϑ
1
2
Y1
B2
A1
X1
F2
F1
F3
K3
M1 M2
X4 X5
A2
X2
A3
X3
E
M3
S2
S1
Heizen
Lüften
1
2
3
S5
6
4
1
2
3
5
1
2
1
2
1
1
1
2
2
2
X1
X2
X3
X5
X6
A B C
X4
-
+
OUT
+15
P
X9
X9
H1
4
Item Nomenclature Remark
A1 Heater Thermo Top E or Z/C
A2 Control unit
A3 Connector box
B2 Temperature sensor
E Glow plug / flame sensor
F1 Fuse 20 A Flat fuse SAE J 1284
F2 Fuse 1 A Flat fuse SAE J 1284
F3 Fuse 25 A Flat fuse SAE J 1284
H1 LED (in item P) operating indicator light
K3 Relay (in item A3) vehicle air fan
M1 Motor combustion air fan
M2 Motor circulation pump
M3 Motor vehicle air fan
P Timer, digital for timer operation
S1 Switch for vehicle air fan depending on vehicle S1 or S2
S2 Switch for vehicle air fan depending on vehicle S1 or S2
S5 Switch summer/winter switch
X1 Connection, 6-pole
X2 Connection, 2-pole water repellant
X3 Connection, 2-pole water repellant
X4 Connection, 2-pole water repellant
X5 Connection, 2-pole water repellant
X6 Connection, 2-pole water repellant
X9 Connection, 4-pole
Y1 Dosing pump
Wire Gauges
< 7.5 m 7.5 - 15 m
0,5 mm
2
0,75 mm
2
1,5 mm
2
2,5 mm
2
4,0 mm
2
0,75 mm
2
1,5 mm
2
2,5 mm
2
4,0 mm
2
6,0 mm
2
bl
br
ge
gn
gr
or
rt
sw
vi
ws
Wire Colours
blue
brown
yellow
green
grey
orange
red
black
violet
white
Legend for circuit diagrams
1
Diagnosis
2 Outside air temperature
3 Vehicle heating air fan fuse
provided in vehicle
4 Option
Visit www.butlertechnik.com for more technical information and downloads.
www.butlertechnik.com

Other manuals for Webasto Thermo Top E

Related product manuals