EasyManua.ls Logo

Webasto Thomas TSL 17 - Electrical Components; Fuel Requirements; Heater Dimensions; Fuel Pump Dimensions

Webasto Thomas TSL 17
26 pages
Print Icon
To Next Page IconTo Next Page
To Next Page IconTo Next Page
To Previous Page IconTo Previous Page
To Previous Page IconTo Previous Page
Loading...
Webasto TSL 17 Coolant Heater
www.webasto.us 8 Webasto Product N.A., Inc.
Electrical Components
Control unit, fan motor, fuel metering pump, digital timer and pencil-type glow pin are designed for 12-volt operation.
The temperature limiter and flame detector are voltage-independent components
Fuel Requirements
The Diesel fuel recommended for use by the vehicle manufacturer is suitable as fuel for the heater. When changing to
cold-resistant fuels, the heater must be operated for approximately 15 minutes to ensure that the fuel line and the fuel
pump are also filled with the new type of fuel.
Any negative effect caused by fuel additives is not known. The addition of waste oil is not permitted.
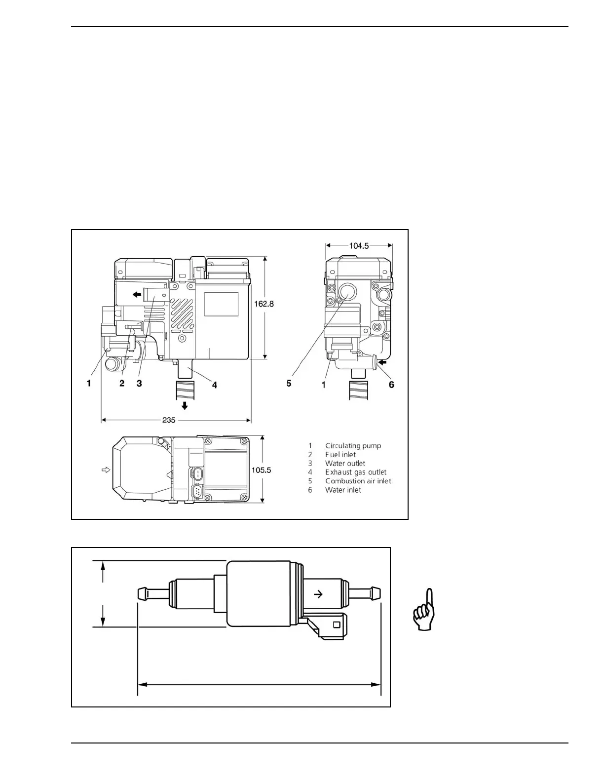
Dimensions
Figure 3. Heater Dimensions
Figure 4. Fuel Pump Dimensions
137 mm (5.39 in.)
40 mm
(1.57 in.)
ATTENTION
The fuel pump must be
mounted horizontally (level)
to operate properly.
Technical Data

Table of Contents

Related product manuals