EasyManua.ls Logo

Weil-McLain WTGO - Blocked Vent Shutoff Switch; BVSS Installation and Wiring

Weil-McLain WTGO
44 pages
Print Icon
To Next Page IconTo Next Page
To Next Page IconTo Next Page
To Previous Page IconTo Previous Page
To Previous Page IconTo Previous Page
Loading...
Part number 550-141-825/1211
27
GOLD
WTGO
OIL-FIRED NATURAL DRAFT WATER BOILER — SERIES 3 — Boiler Manual
SERVICE TECHNICIAN ONLY — read and follow completely.
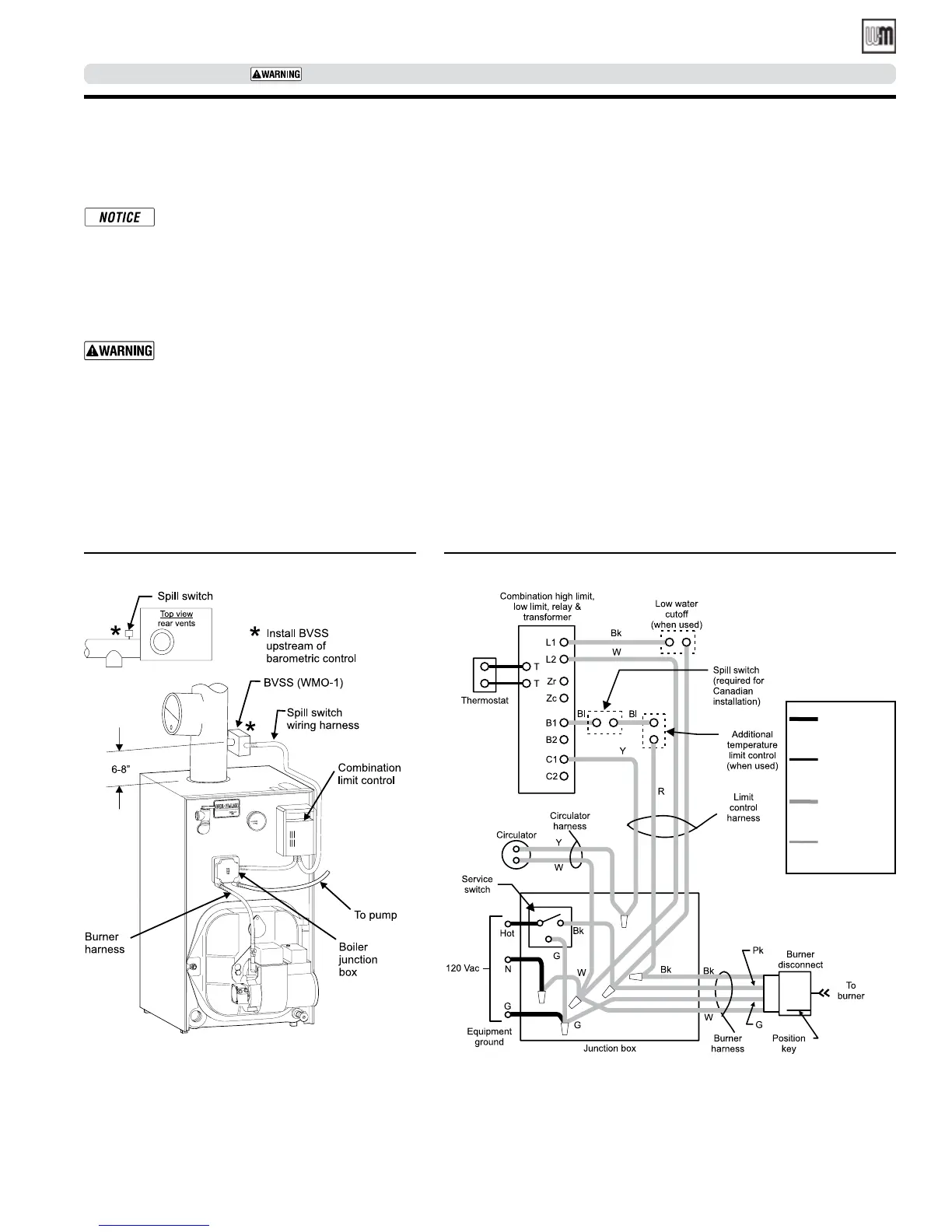
Connect wiring — blocked vent shutoff switch option
Figure 19 Blocked vent shutoff switch installation Figure 20 BVSS wiring diagram
120 vac
field wiring
Low voltage
field wiring
120 vac
factory wiring
Low voltage
factory wiring
Blocked vent shutoff switch
In Canada, blocked vent shutoff switch kit
(see parts list page 36) must be installed.
See Figure 19. The wiring diagram in
Figure 20 shows boiler wiring only up
to the burner disconnect. For additional
information, refer to manufacturer’s
instructions.
Electric shock hazard. Turn off electrical
power supply at service entrance panel
before making any electrical connections
to avoid possible electric shock hazard.
Failure to do so can cause severe personal
injury or death.
After installing BVSS switch, proceed as follows
1. Disconnect power.
2. Install Spill Switch (BVSS) Wiring Harness (P/N 591-391-942) as fol-
lows:
a. Remove cover from BVSS Box.
b. Install straight fitting end of the harness on the BVSS Box. Install
elbow (90º) end fitting on the Boiler Junction Box (see Figure 19).
c. Install both the fork ends to the screw terminals on the BVSS Switch
as per the wiring diagram, (see Figure 20).
d. Replace BVSS box cover.
e. Locate Combination Control, remove cover, and disconnect red
wire from “B1” terminal.
f. If red wire from Step e” has uninsulated female end, replace it
with insulated female end as supplied in kit.
g. Connect female end of Spill Switch BVSS Harness (blue wire) to
“B1” terminal.
h. Connect male end of Spill Switch BVSS Harness to the red wire
removed in Step e”.
i. Replace Combination Control Cover.
3. Turn on power and verify safe operation of the appliance.
4. Restore boiler to normal operation.

Table of Contents

Related product manuals