EasyManua.ls Logo

Wen GN9500 - Engine Oil Recommendations and Checking

Wen GN9500
37 pages
Print Icon
To Next Page IconTo Next Page
To Next Page IconTo Next Page
To Previous Page IconTo Previous Page
To Previous Page IconTo Previous Page
Loading...
GENERATOR PREPARATION
The following section describes the necessary steps to prepare the generator for use. If you are unsure about how to
perform any of the steps, please call 1-(800) 232-1195 M-F 8-5 CST for customer service. Failure to perform these
steps properly can damage the generator or shorten its life.
STEP 1 - ADD / CHECK OIL
The generator is shipped without oil. User must add the proper amount of oil before operating the generator for the
first time. The oil capacity of the engine crankcase is 37.2 fl. oz. (1.1 L).
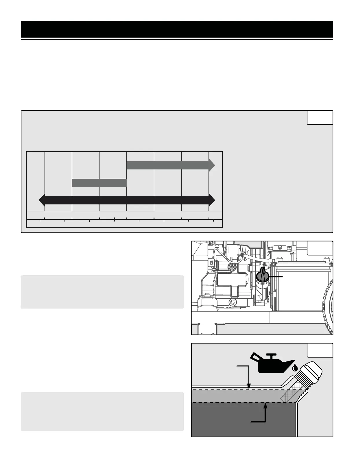
30W Engine Oil
Temperatures above 40°F
10W-30 Engine Oil
Temperatures between 0°F - 40°F
Synthetic 5W-30 Engine Oil
All temperature ranges
ENGINE OIL RECOMMENDATIONS
Select good quality detergent oil bearing the American Petroleum Institute (API) service classifications
SJ, SL, or SM (synthetic oils may be used). Select the SAE viscosity grade of oil that matches the ex-
pected operating temperature.
To add oil, follow these steps:
1. Place the generator on a level surface. Make sure the en-
gine is off before adding or checking oil.
CAUTION! Keep the generator level! Tilting the generator
to assist in filling will cause oil to flow into the wrong
areas of the engine and cause damage.
2. Unscrew the oil dipstick (Fig. 5 - 1) from the engine.
3. Using an oil funnel or appropriate dispenser, slowly add
oil into the oil fill, being careful not to overfill the unit. Fill the
crankcase to the upper fill line so you can visually see the oil
coming halfway up the oil fill threads.
4. Reinstall the oil dipstick and firmly tighten it. Wipe clean
any spilled oil.
Upper Fill Line
CAUTION! For subsequent operation, the oil level should
be checked before each use, or after every 8 hours of
operation. The generator is equipped with a low-oil sen-
sor and will not start without a sufficient amount of oil.
Synthetic 5W-30
30W
10W-30
°F
°C
-20 0 20 32 40 60 80 100
40200
-20
-10
10
-30 30
Lower Fill Line
1
Fig. 4
Fig. 5
Fig. 6
13

Related product manuals