EasyManua.ls Logo

Williams 3509622A - Front Panel Installation

Williams 3509622A
44 pages
Print Icon
To Next Page IconTo Next Page
To Next Page IconTo Next Page
To Previous Page IconTo Previous Page
To Previous Page IconTo Previous Page
Loading...
MONTEREY TOP VENT GAS WALL HEATER 19
FIGURE 14  GAS PIPING
MANUAL SHUTOFF VALVE
18 NPT
PLUGGED
HOLE FOR
TEST
GAUGE
DROP
GROUND JOINT UNION
GAS
VALVE
GAS
VALVE
GAS
VALVE
PIPED GAS SUPPLY
PIPED GAS SUPPLY
TUBING GAS SUPPLY
CAUTION: Shut off the main gas supply before removing the end cap to prevent
gas from filling the work area. Test for gas leakage when installation is complete.
2
CAUTION: All bends in metal tubing must be smooth.
1
2
CAP
2
CAP
2
CAP
1
HORIZONTAL
3 76.2 MM MINIMUM
3 76.2 MM
MINIMUM
3 76.2 MM MINIMUM
MANUAL SHUTOFF VALVE
MANUAL
SHUTOFF VALVE
NIPPLE
TEE
FITTING
NIPPLE
TEE
FITTING
NIPPLE
RISER
RISER
DROP
HORIZONTAL
GROUND JOINT
UNION
GROUND JOINT UNION
FIGURE 15  PROPER PIPING PRACTICE
PROPER PIPE
THREADING
INCORRECT
THREADING
2 THREADS EXPOSED
SEALANT THIN
ENOUGH TO SHOW
THREADS
OVERTHREADED
SEALANT
TOO THICK
SEALANT
PAST TIP
DAMAGED
THREADS
WARNING: Danger of property damage, bodily
injury or death. Never use a match or open flame
to test for leaks. Never exceed specified pressures
for testing. Higher pressures may damage the gas
valve and cause over-firing which may result in
component(s) failure. Never attempt start-up of unit
before thoroughly ventilating the area and smelling
near the floor for gas odor.
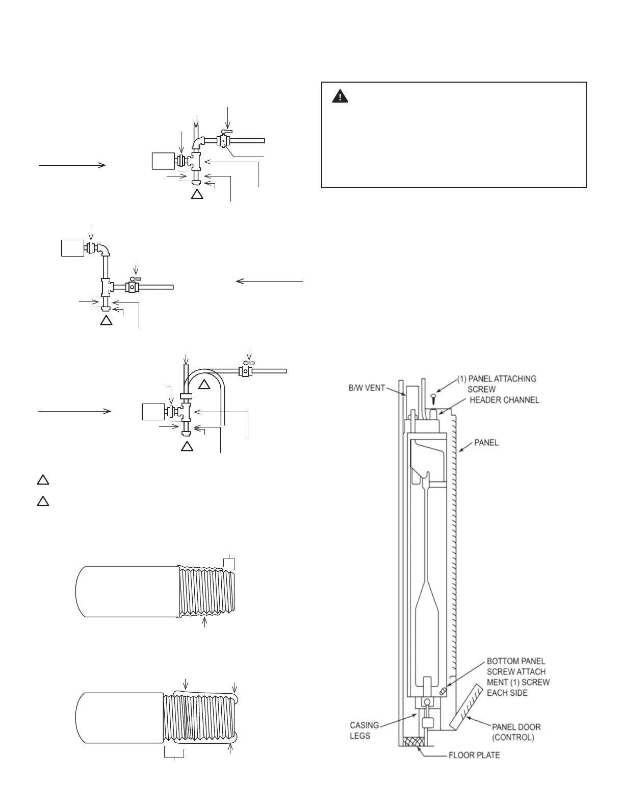
Front Panel Installation
Place the front panel top over the channel on the header
plate, as shown in Figure 16. Press the panel tight against
wall, and secure it to the header channel with the screw
provided in final assembly package. Open the control
door at bottom of panel and fasten the panel at each side
through slots in flanges with screws provided.
Attach handle to the front panel door with the screw
provided.
Install the second face panel in same manner for 500
Series models.
FIGURE 16  PANEL PLACEMENT

Other manuals for Williams 3509622A

Related product manuals