EasyManua.ls Logo

Williams 4007732 - Thermostat Wiring and Connection Steps; Thermostat Physical Mounting Procedure

Williams 4007732
48 pages
Print Icon
To Next Page IconTo Next Page
To Next Page IconTo Next Page
To Previous Page IconTo Previous Page
To Previous Page IconTo Previous Page
Loading...
Installing Your Furnace
Thermostat Installation
1. If an old thermostat is being replaced and is in a satisfactory
location and the wiring appears to be in good condition, use
existing wiring. If in doubt, use new wire.
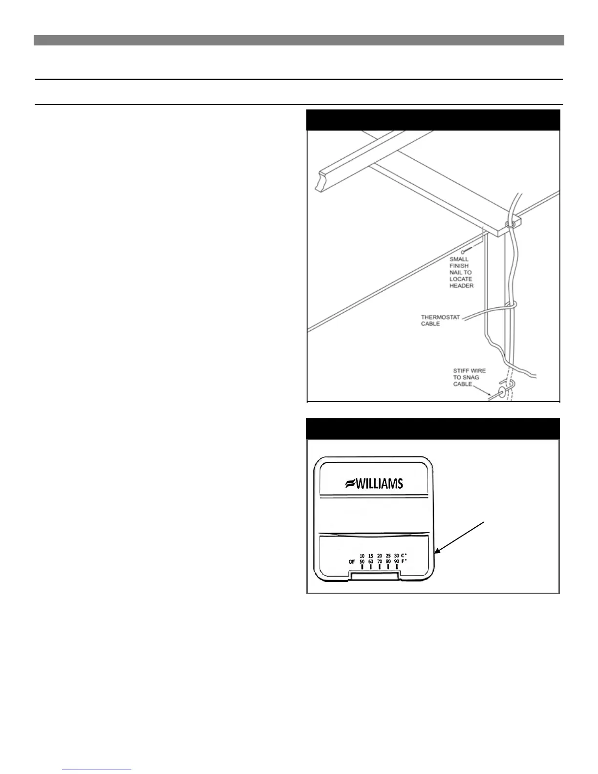
2. If a new location is chosen or if this is a new installation,
thermostat cable must first be run to the location selected. All
wiring must agree with local codes and ordinances. These
instructions cover bringing the wire down from the attic but it
can be run from a basement or crawl space using similar
methods.
3. Before drilling a hole in the wall at selected location, drive a
small finishing nail through the ceiling in the corner of the wall
and ceiling above the thermostat location. Pull the nail out and
push a small stiff wire through the hole so it can be found in
the attic. Drill a ½-inch hole through the ceiling wall plate.
4. Probe for obstructions in the partition. Then drill a ½-inch hole
through wall at the selected location for thermostat.
5. From the attic, feed the thermostat cable or a stiff wire through
wall until even with thermostat location.
6. Snag thermostat cable through the hole and pull the cable
through the hole in wall so that 6-inches of cable protrudes.
7. Route cable to wall furnace.
MOUNTING THE THERMOSTAT
1. To remove thermostat cover, squeeze both sides and lift.
Carefully remove and discard the packing tab protecting the
switch contacts. See Fig 17.
2. Connect the thermostat wires to the terminal screws on the
thermostat base. Make sure the wiring does not interfere with
thermostat operation.
3. Push any excess wire back through the hole in the wall and
plug the hole with insulation to prevent drafts from affecting
thermostat operation.
4. Being sure to level the thermostat for best appearance, fasten
the thermostat base to the wall through the mounting holes
with the screws provided.
5. Replace the thermostat cover.
FIGURE 16 Route Thermostat Cable
SQUEEZE FIRMLY
BOTH SIDES AND LIFT
TO REMOVE COVER
FIGURE 17 Thermostat

Related product manuals