EasyManua.ls Logo

Wolf CSO30 - Warranty Information

Wolf CSO30
5 pages
Print Icon
To Next Page IconTo Next Page
To Next Page IconTo Next Page
To Previous Page IconTo Previous Page
To Previous Page IconTo Previous Page
Loading...
CSO24 and CSO30 (SWS #13508346)
Installation Information
2-4
#9001333 - Revision A - August, 2014
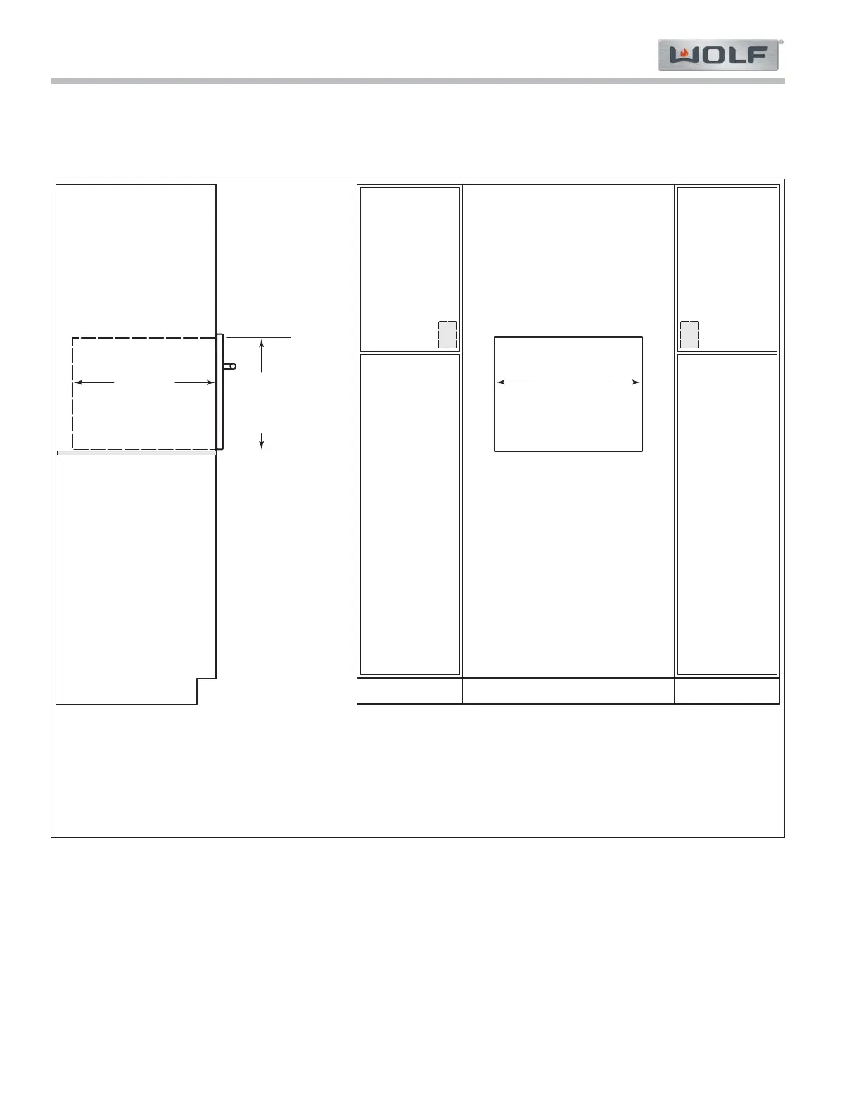
ROUGH-IN INSTALLATION SPECIFICATIONS
Standard Installation
FRONT VIEWSIDE VIEW
EE
22
1
/8" (562)
OPENING WIDTH
17
11
/16"
(449)
OPENING
HEIGHT
21
9
/16"
(548) min
OPENING DEPTH
CSO24 and CSO30
Notes:
Opening Width for CSO24 and CSO30 are the same.
Minimum base support 100 lbs (45 kg).
Electrical Supply must be located in adjacent cabinet with 3’ (914) of opening
Dashed line represents profile of unit.
Numbers in parenthesis are in millimeters.
Dimensions may vary by +/- 1/8” (3)

Other manuals for Wolf CSO30

Related product manuals