EasyManua.ls Logo

Wolf RT366 - Wolf Built-in Ovens

Wolf RT366
5 pages
Print Icon
To Next Page IconTo Next Page
To Next Page IconTo Next Page
To Previous Page IconTo Previous Page
To Previous Page IconTo Previous Page
Loading...
Planning Information
36" (914) Gas Rangetops
MODELS RT366 / RT364C / RT364G / RT362F
Dimensions in parentheses are in
millimeters unless otherwise specified.
4
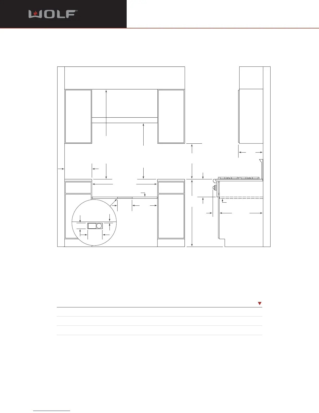
INSTALLATION SPECIFICATIONS
DIMENSIONS
Overall Width of Rangetop 36" (914)
Finished Rough Opening Width 36
1
/4" (921)
Location of Electrical and Gas Supply Within shaded area
See Installation Instructions shipped with unit for detailed specifications.
Refer to the Wolf Design Guide for additional specifications.
14"
(356)
8" (203)
36
1
/4" (921)
FINISHED ROUGH OPENING WIDTH
3
/4" (19) PLATFORM
TOP VIEW
OF PLATFORM
E
G
8"
(203)
3"(76)
BACK WALL
1
/2"
(13)
2
3
/4"
(70)
ISLAND INSTALLATIONS: 12" (305) MINIMUM
CLEARANCE FROM BACK OF RANGETOP TO
COMBUSTIBLE REAR WALL ABOVE COUNTERTOP–
0" (0) TO NON-COMBUSTIBLE MATERIALS
3
/4" (19) PLATFORM
9
1
/2" (241)
OPENING
HEIGHT
24" (610)
13" max
(330)
36"
(914)
18"min (457)
TO COUNTERTOP
LOCATION OF
GAS AND ELECTRICAL
SUPPLY CUT-OUT
WITHIN SHADED AREA
THROUGH BOTTOM OF
PLATFORM
30"min (762)
TO
36"max (914)
COUNTERTOP
TO BOTTOM OF
VENTILATION HOOD
6"min (152)
TO
COMBUSTIBLE
MATERIALS
(BOTH SIDES)
30"min (762)
COUNTERTOP
TO COMBUSTIBLE
MATERIALS
36"min (914)
FOR CHARBROILER
VENTILATION HOOD

Other manuals for Wolf RT366

Related product manuals