EasyManua.ls Logo

Wolf RT366 - Page 32

Wolf RT366
84 pages
Print Icon
To Next Page IconTo Next Page
To Next Page IconTo Next Page
To Previous Page IconTo Previous Page
To Previous Page IconTo Previous Page
Loading...
19
1
/4" (489)
COOKTOP CUT-OUT
DEPTH
2
1
/2"min
(64)
E
14" (356)
CUT-OUT
WIDTH
30"
(762)
4"(102)
13"
(330)
G
18"
(457)
7"**
(178)
18"
(457)
7"**
(178)
15"
(381)
15"
(381)
15"
(381)
33" (838)
RECOMMENDED
CABINET WIDTH
LOCATION OF GAS SUPPLY
MAY ALSO EXTEND 5" ON
FLOOR FROM BACK WALL
5"
(127)
FRONT OF COUNTERTOP
2
1
/2"min
(64)
19
1
/4" (489)
COOKTOP
CUT-OUT DEPTH
14" (356)
COOKTOP
CUT-OUT
WIDTH
LOCATION OF GAS
SUPPLY MAY ALSO
EXTEND 5" ON FLOOR
FROM BACK WALL
24" OR 30"*
(610 or 762)
TO COOKING
SURFACE
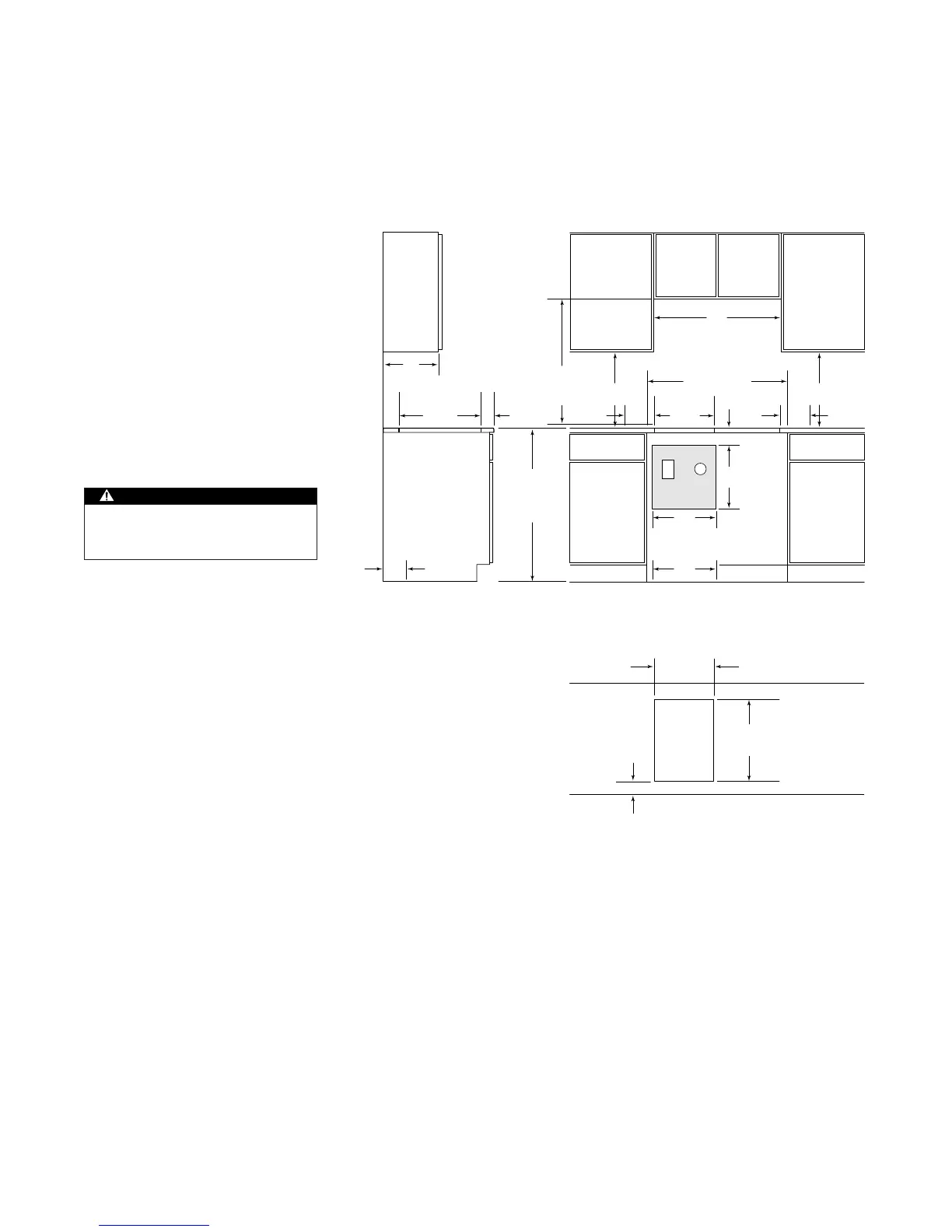
NOTE: Application shown allows for installation of two 15" (381) modules side-by-side.
* Minimum 24" (610) from protected cabinet or 30" (762) from unprotected cabinet to cooking surface.
** Minimum clearance from side edge of cooktop cut-out to combustible surface up to 18" (457) above cooking surface.
36"(914)
STANDARD
FLOOR TO
COUNTER
HEIGHT
32
Dimensions in parentheses are in millimeters unless otherwise specified.
W OLF G AS C OOKTOPS
Cut-out dimensions, electrical and gas placement for 15" (381) gas cooktop,
no oven or downdraft.
15" (381) GAS COOKTOP
For the 15" (381) gas cooktop, the
gas service may be supplied through
the floor, if the cooktop is not
installed above an oven. Refer to the
illustration for specifics on cut-out
dimensions and placement of gas and
electrical.
IMPORTANT NOTE: When multiple
15" (381) cooktop modules are
installed side by side, refer to the
countertop cut-out dimensions on
page 35.
WARNING
This cooktop is intended for
indoor use.

Other manuals for Wolf RT366

Related product manuals