EasyManua.ls Logo

Wolf RT366 - Page 39

Wolf RT366
84 pages
Print Icon
To Next Page IconTo Next Page
To Next Page IconTo Next Page
To Previous Page IconTo Previous Page
To Previous Page IconTo Previous Page
Loading...
39
W OLF I NTEGRATED C OOKTOPS
PLANNING
INFORMATION
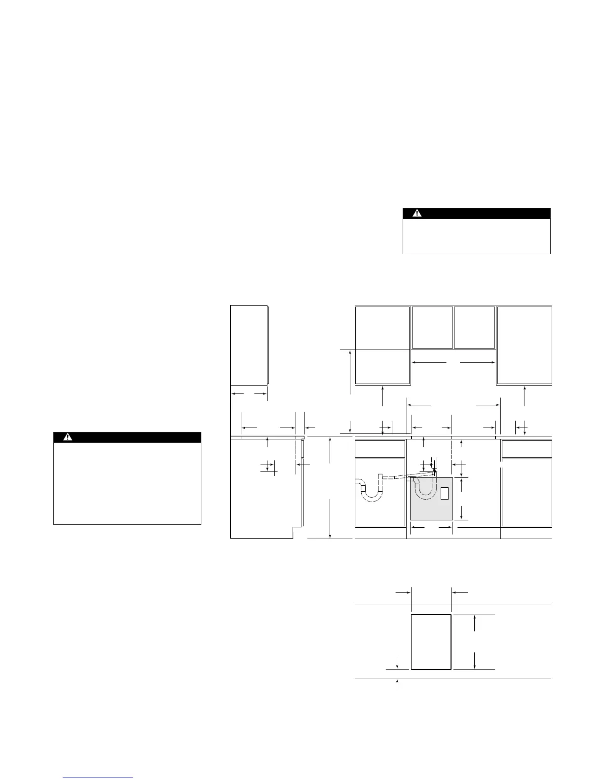
The illustrations provide the overall
size and finished cut-out dimensions
that you need to plan for in your
installation.
IMPORTANT NOTE: When multiple
15" (381) cooktop modules are
installed side by side, refer to the
countertop cut-out dimensions on
page 35.
For the drain connection, the 5/8"
(16) outlet from the valve will accept
a drain hose that must flow
downward to and tie into an existing
sink drain. Or a separate drain with a
freefall may be installed. Following
local building codes, your plumber
will dictate how to plumb the unit.
As a third option, the consumer will
supply a heat resistant bucket for
drainage in the location of the drain
outlet. Refer to the illustration for
location of the drain outlet.
A Wolf chimney or Pro Series ventila-
tion hood is recommended with this
cooktop. When installing a ventilation
hood, refer to the specific require-
ments of the hood for the minimum
dimension to cooking surface. Refer
to pages 60-82 for ventilation
specifics.
IMPORTANT NOTE: Wolf does not
recommend the use of downdraft
ventilation with the electric steamer
cooktop.
7
5
/8"
(194)
12
3
/8"
(314)
DRAIN OUTLET
LOCATION
E
30"
(762)
13
1
/2"
(343)
13"
(330)
15"
(381)
15"
(381)
33" (838)
RECOMMENDED
CABINET WIDTH
12
3
/8"
(314)
6"
(152)
NOTE: Dimensions in
parentheses are in millimeters.
19
1
/4" (489)
COOKTOP CUT-OUT
DEPTH
2
1
/2"min
(64)
14" (356)
CUT-OUT
WIDTH
18"
(457)
7"**
(178)
18"
(457)
7"**
(178)
24" OR 30"*
(610 or 762)
TO COOKING
SURFACE
NOTE: Application shown allows for installation of two 15" (381) modules side-by-side.
* Minimum 24" (610) from protected cabinet or 30" (762) from unprotected cabinet to cooking surface.
** Minimum clearance from side edge of cooktop cut-out to combustible surface up to 18" (457) above cooking surface.
36"(914)
STANDARD
FLOOR TO
COUNTER
HEIGHT
CABINET SIDE VIEW
DRAIN OUTLET
LOCATION
Electrical Requirements
The Wolf electric steamer cooktop
requires a separate, grounded 3-wire
240V, 15 amp service with its own
circuit breaker. The unit is provided
with a 4' (1.2 m) flexible 3-wire
conduit for connection at the electri-
cal supply. Locate electrical within the
shaded area shown in the illustration.
At 240V this cooktop is rated at 2.6
Kw.
You must follow all National Electrical
Code regulations. In addition, be
aware of local codes and ordinances
when installing your service.
Dimensions in parentheses are in millimeters unless otherwise specified.
Cut-out dimensions and electrical placement for electric steamer cooktop.
FRONT OF COUNTERTOP
2
1
/2"min
(64)
19
1
/4" (489)
COOKTOP
CUT-OUT DEPTH
14" (356)
COOKTOP
CUT-OUT
WIDTH
WARNING
This cooktop should not be
installed immediately next to a
Wolf 15"(381) fryer cooktop, as
contact between water and hot
oil may cause burns from steam
and hot oil.
WARNING
This cooktop is intended for
indoor use.

Other manuals for Wolf RT366

Related product manuals