EasyManua.ls Logo

Wolf RT366 - Page 41

Wolf RT366
84 pages
Print Icon
To Next Page IconTo Next Page
To Next Page IconTo Next Page
To Previous Page IconTo Previous Page
To Previous Page IconTo Previous Page
Loading...
41
W OLF I NTEGRATED C OOKTOPS
PLANNING
INFORMATION
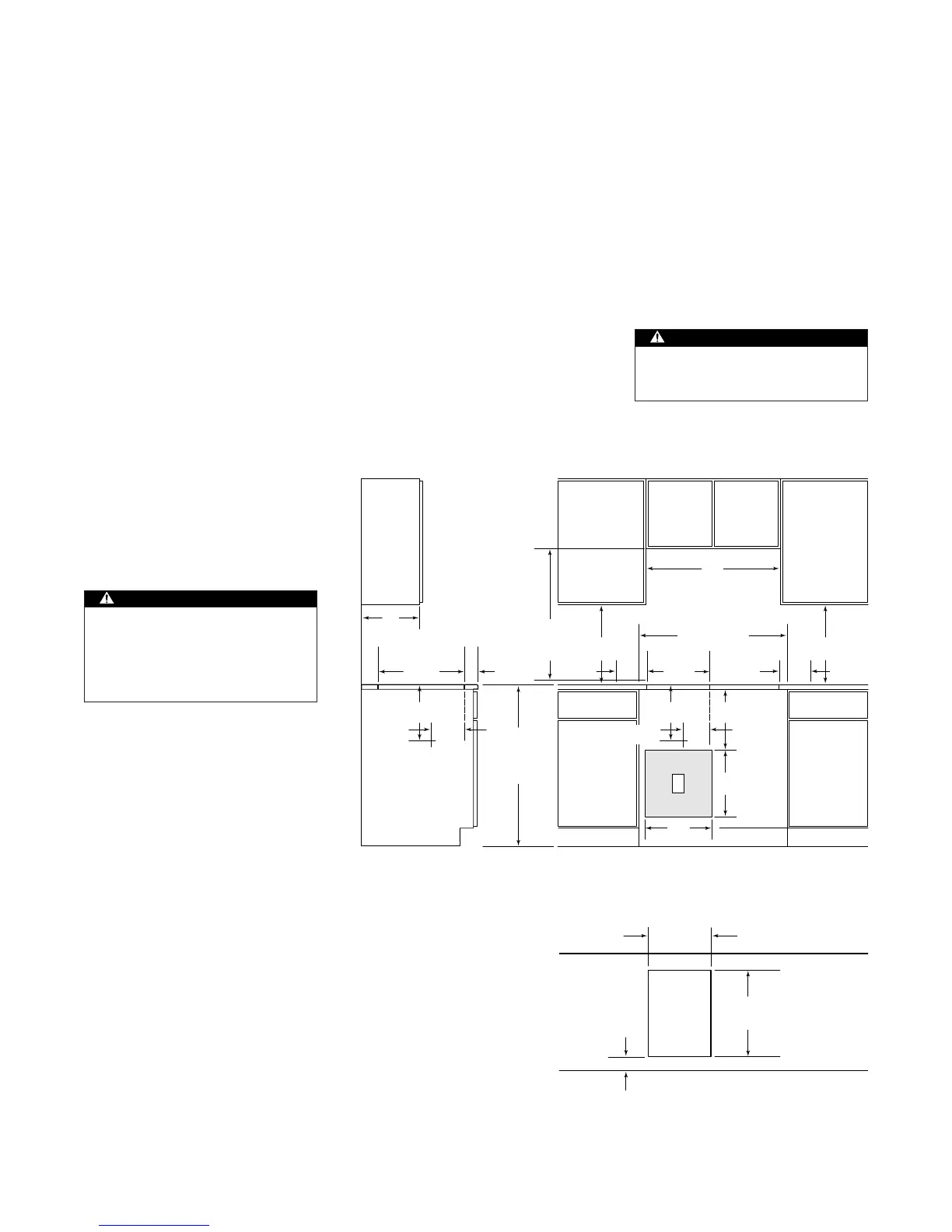
The illustrations provide the overall
size and finished cut-out dimensions
that you need to plan for in your
installation.
IMPORTANT NOTE: When multiple
15" (381) cooktop modules are
installed side by side, refer to the
countertop cut-out dimensions on
page 35.
The electric fryer cooktop must be
installed in a base cabinet with access
to the bottom of the unit to drain the
oil through a manual valve. The
consumer must supply a heat resist-
ant bucket to accept the drained oil.
Refer to the illustration for location of
the drain outlet.
A Wolf chimney or Pro Series ventila-
tion hood is recommended with this
cooktop. When installing a ventilation
hood, refer to the specific require-
ments of the hood for the minimum
dimension to cooking surface. Refer
to pages 60-82 for ventilation
specifics.
IMPORTANT NOTE: Wolf does not
recommend the use of downdraft
ventilation with the electric fryer
cooktop.
E
30"
(762)
13
1
/2"
(343)
13"
(330)
15"
(381)
15"
(381)
33" (838)
RECOMMENDED
CABINET WIDTH
12
3
/8"
(314)
7
5
/8"
(194)
6"
(152)
12
3
/8"
(314)
DRAIN OUTLET
LOCATION
DRAIN OUTLET
LOCATION
19
1
/4" (489)
COOKTOP CUT-OUT
DEPTH
2
1
/2"min
(64)
14" (356)
CUT-OUT
WIDTH
18"
(457)
7"**
(178)
18"
(457)
7"**
(178)
24" OR 30"*
(610 or 762)
TO COOKING
SURFACE
NOTE: Application shown allows for installation of two 15" (381) modules side-by-side.
* Minimum 24" (610) from protected cabinet or 30" (762) from unprotected cabinet to cooking surface.
** Minimum clearance from side edge of cooktop cut-out to combustible surface up to 18" (457) above cooking surface.
36"(914)
STANDARD
FLOOR TO
COUNTER
HEIGHT
CABINET SIDE VIEW
Electrical Requirements
The Wolf electric fryer cooktop requires
a separate, grounded 3-wire 240V, 15
amp service with its own circuit
breaker. The unit is provided with a 4'
(1.2 m) flexible 3-wire conduit for
connection at the electrical supply.
Locate electrical within the shaded area
shown in the illustration. At 240V this
cooktop is rated at 2.6 Kw.
You must follow all National Electrical
Code regulations. In addition, be
aware of local codes and ordinances
when installing your service.
Dimensions in parentheses are in millimeters unless otherwise specified.
Cut-out dimensions and electrical placement for electric fryer cooktop.
FRONT OF COUNTERTOP
2
1
/2"min
(64)
19
1
/4" (489)
COOKTOP
CUT-OUT DEPTH
14" (356)
COOKTOP
CUT-OUT
WIDTH
WARNING
This cooktop cannot be installed
immediately next to any open
flame cooking device. The open
flame may cause ignition of oil.
WARNING
This cooktop is intended for
indoor use.

Other manuals for Wolf RT366

Related product manuals