EasyManua.ls Logo

Wolf RT366 - Page 47

Wolf RT366
84 pages
Print Icon
To Next Page IconTo Next Page
To Next Page IconTo Next Page
To Previous Page IconTo Previous Page
To Previous Page IconTo Previous Page
Loading...
47
E
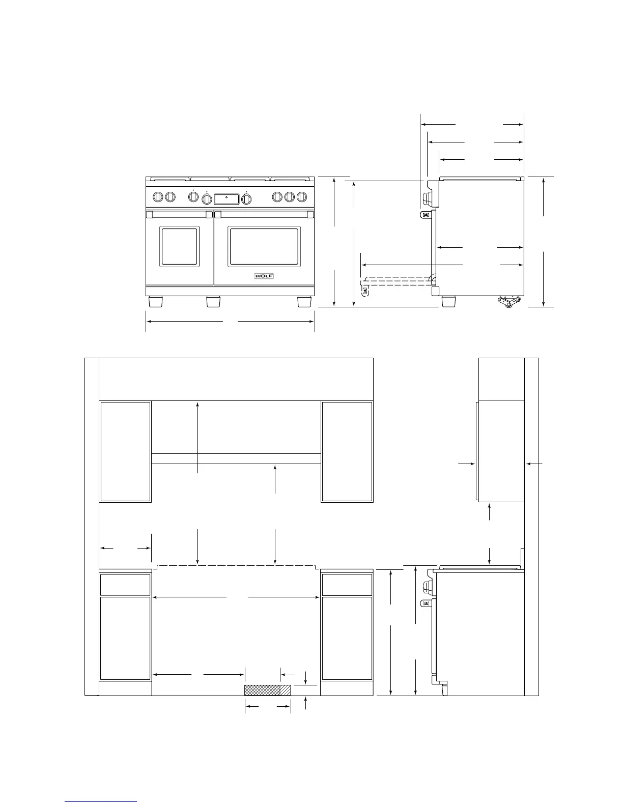
LOCATION OF
ELECTRICAL
36"
(914)
36
7
/8"
(937) TO
COOKING
SURFACE
30"min (762)
COOKING SURFACE
TO COMBUSTIBLE
CONSTRUCTION
44"min (914)
TO CHARBROILER
30"min (762) TO
36"max (914)
TO BOTTOM OF
VENTILATION HOOD
VENTILATION HOOD
COMBUSTIBLE CONSTRUCTION
18"min (457)
TO COOKING
SURFACE
13"max
(330)
LOCATION OF GAS AND
ELECTRICAL EXTENDS 3"
ON FLOOR FROM BACK WALL
ISLAND INSTALLATIONS: 12" MINIMUM
CLEARANCE FROM BACK OF RANGE
TO COMBUSTIBLE CONSTRUCTION
B
FINISHED ROUGH OPENING WIDTH
COOKING SURFACE
C
3
1
/4"
(83)
D
LOCATION
OF GAS
SUPPLY
6"min
(152)
TO WALL
A
OVERALL WIDTH
36
7
/8"
(937)
OVERALL
HEIGHT
25" (635)
47" (1194)
24
1
/4"
(616)
27
1
/2"
(699)
29
1
/2" (749)
OVERALL DEPTH
LEGS AND CASTERS ALLOW
2
1
/8" HEIGHT ADJUSTMENT
35
7
/8"
(911)
36
7
/8"
(937)
TO
COOKING
SURFACE
INSTALLATION DIMENSIONS
W OLF D UAL F UEL R ANGES
NOTE: Refer to the chart on the previous page for dimensions referenced by letters in the illustrations.
Dimensions in parentheses are in millimeters unless otherwise specified.

Other manuals for Wolf RT366

Related product manuals