EasyManua.ls Logo

Wolf RT366 - Page 7

Wolf RT366
84 pages
Print Icon
To Next Page IconTo Next Page
To Next Page IconTo Next Page
To Previous Page IconTo Previous Page
To Previous Page IconTo Previous Page
Loading...
7
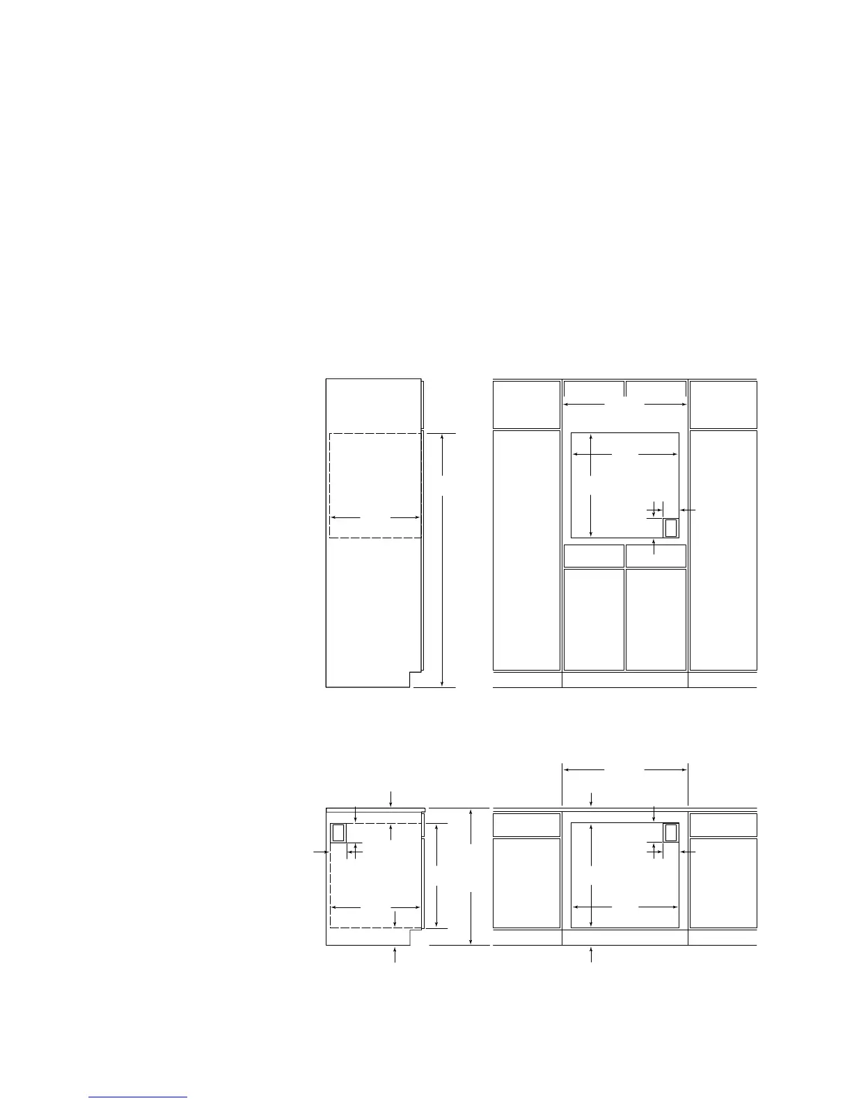
Rough opening and electrical placement for 30" (762) single oven – undercounter
installation.
27
3
/16"
(691)
28
1
/2"
(724)
5"
(127)
4"
(102)
24"min
(610)
E
33"
(838)
RECOMMENDED CABINET WIDTH
30"min (762)
67"max
(1702)
CABINET SIDE VIEW
27
3
/16"
(691)
4
3
/4"min (121)
3
3
/4"min (95)
28
1
/2"
(724)
E
5"
(127)
4"
(102)
4
3
/4"min (121)
24"min
(610)
E
5"
(127)
ELECTRICAL
LOCATION IN
ADJACENT RIGHT
SIDE CABINET
4"
(102)
33"(838)
RECOMMENDED CABINET WIDTH
30"min (762)
27
3
/16"
(691)
3
3
/4"min
(95)
36"(914)
STANDARD
FLOOR TO
COUNTER
HEIGHT
30" (762) SINGLE OVEN
Wolf recommends using 33" (838)
cabinets with the 30" (762) single
oven. Also, you need a minimum 24"
(610) of usable cabinet depth. The
bottom cabinet support must be able
to support 250 lbs (113 kg).
The Wolf 30" (762) single oven has a
face trim on all four sides and will
overlap stiles and rails. The trim
overlaps 3/16" (5) on the bottom,
5/16" (8) on the top and 3/4" (19)
on each side.
Electrical Requirements
The 30" (762) single oven requires a
separate, grounded 4-wire 240V, 30
amp service with its own circuit
breaker. It is provided with a 4' (1.2
m) flexible 4-wire conduit for connec-
tion at the electrical supply. Locate
electrical within the shaded area
shown in the illustration. The electric
rating is 5.1 Kw at 240V and 3.8 Kw
at 208V with a minimum 30 amp
service.
IMPORTANT NOTE: The electrical
supply must be flush with the back
wall to allow for proper installation.
The electrical supply can be placed in
an adjacent cabinet as long as it is
within reach of the 4' (1.2 m)
conduit, and a 2" (51) diameter hole
is provided. For a 24" (610) depth
cabinet application, electrical conduit
must be kept to the right (viewed
from front of cabinet) for a flush
installation.
You must follow all National Electrical
Code regulations. In addition, be
aware of local codes and ordinances
when installing your service.
Rough opening and electrical placement for 30" (762) single oven – wall application.
The Wolf 30" (762) single oven may
be installed in combination with a
microwave and warming drawer, refer
to page 16 for installation specifica-
tions.
The Wolf 30" (762) single oven may
be installed below a Wolf electric or
gas cooktop. Refer to the Electric and
Gas Cooktops sections for additional
specifications. A built-in oven cannot
be installed below a Wolf rangetop.
W OLF B UILT-IN O VENS

Other manuals for Wolf RT366

Related product manuals