7
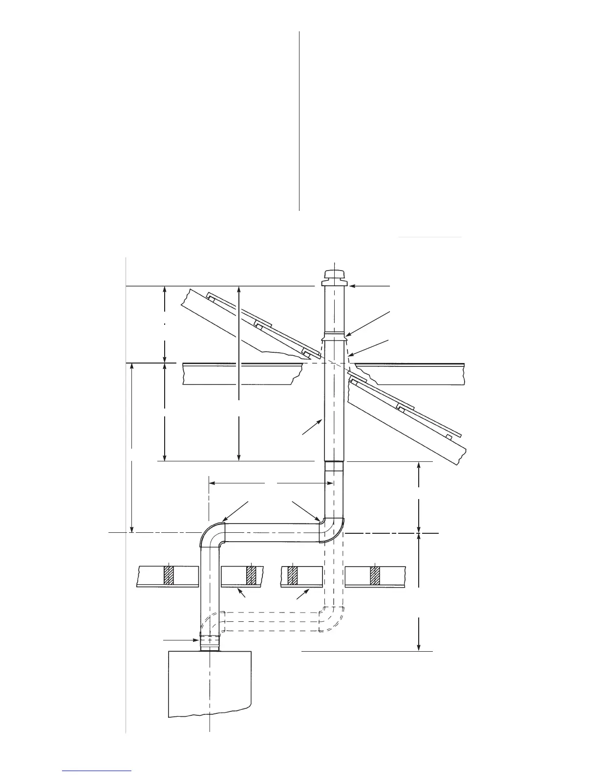
4.2 AIR AND FLUE DUCT LENGTHS - OFFSET WITH VERTICAL
ADAPTER (90° or, where applicable, 45° bends)
1st Vertical Section:
Measure from the top of the flue spigot on the appliance to
the centre-line of the horizontal section of the offset.
Dimension 'J'.
Refer to Fig. 10.
Duct Length = J — 173mm
Note: The air duct must not be less than 25mm.
If the elbow fits directly onto the spigot then J = 173mm.
Offset (Horizontal) Section:
Measure from the centre of the flue spigot on the appliance
to the centre-line of the 2nd vertical section. Dimension 'D'.
Refer to Fig. 10.
Duct Length = D — 162mm
Note: The dimension D must not be less than 210mm.
2nd Vertical Section:
Measure the distance from centre-line of the horizontal offset
to the outside edge of the hole diameter marked on the
inside surface of the roof. Dimension 'K'. Refer to Fig. 7.
Note: Dimension K, for a pitched roof, must go to the highest
point of the hole diameter.
Determine dimension 'F'. Refer to Fig.1and 7 for the limiting figure.
Duct Length = L — 81mm
Derivation: Dimension G= 1100 — Fmm
Dimension L = K — G
Note: The air duct must not be less than 100mm.
Air inlet flange
Weather sealing collar
(Secure with screw provided
and seal with silicone sealant)
Roof flashing (not supplied)
Flat roof
Pitched roof
Ceiling
Fire stop spacer
Vertical flue
adaptor
Note: Straight length (D + J + L )
Note: For more information on bends in flue
see installation and service instructions.
90° flue bends
Appliance front
300mm
minimum
Height of terminal
assembly 1100mm
Flue terminal
assembly
(106mm diameter)
F
G = 1100mm - F
K
J
Measure from appliance
top panel
D
L = K - G