EasyManua.ls Logo

Xinje DS5F-21P5-PTA - Page 27

Xinje DS5F-21P5-PTA
210 pages
Print Icon
To Next Page IconTo Next Page
To Next Page IconTo Next Page
To Previous Page IconTo Previous Page
To Previous Page IconTo Previous Page
Loading...
25
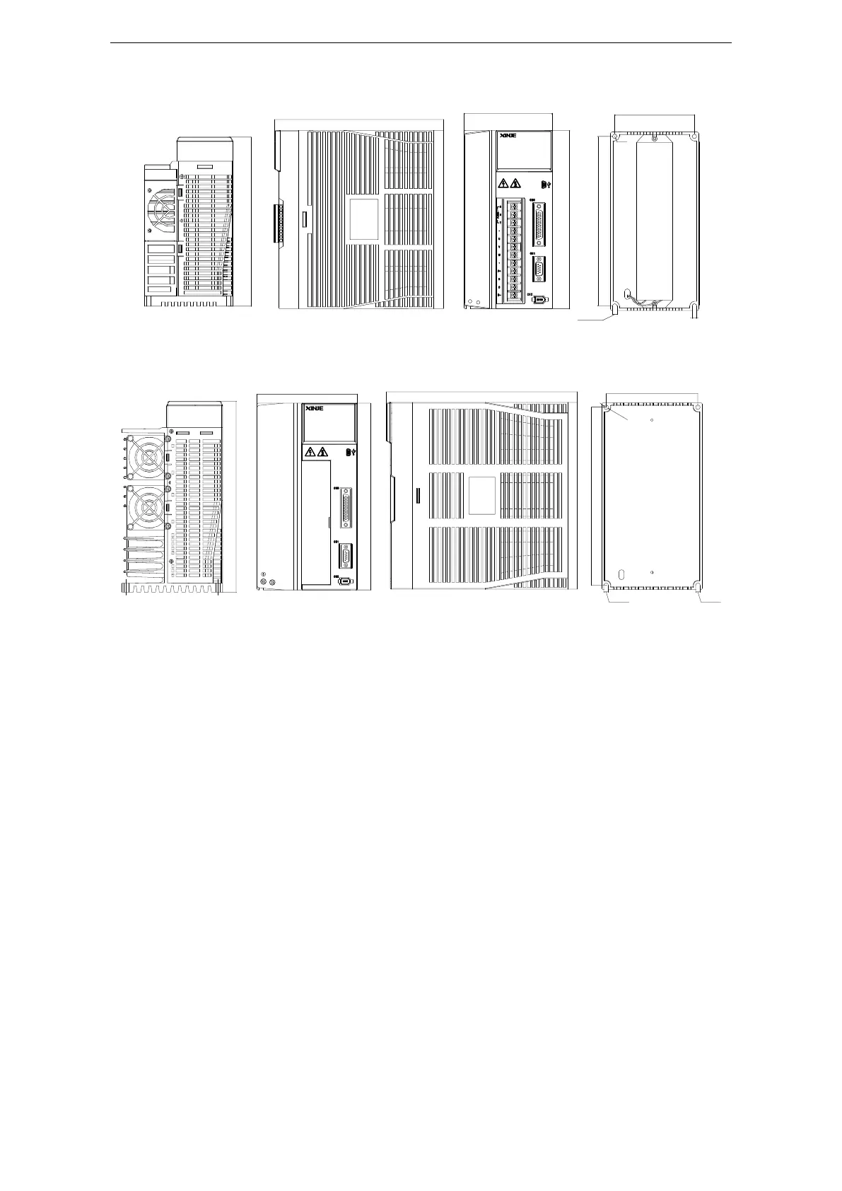
DS5F-43P0-PTA Unit: mm
210.18
210.18
110.00
222.00
99.00
211.00
5.50
5.50
R2.75
DS5F-45P5-PTA / DS5F-47P5-PTA Unit: mm
6.0
123.5
6.0
239.5
256.6
135
251
256.65
2-φ6.0

Table of Contents

Related product manuals