EasyManua.ls Logo

Yamaha F15CE - Charge Warning Unit; Charge Warning Unit Applications

Yamaha F15CE
226 pages
Print Icon
To Next Page IconTo Next Page
To Next Page IconTo Next Page
To Previous Page IconTo Previous Page
To Previous Page IconTo Previous Page
Loading...
5-30
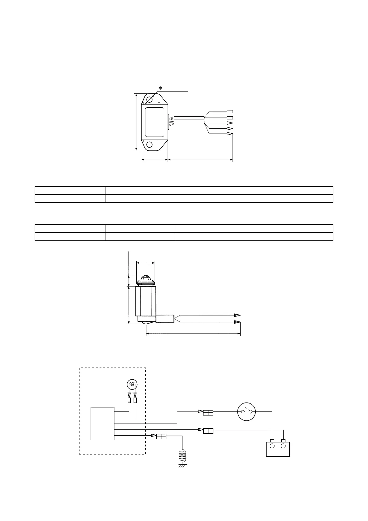
CHARGE WARNING UNIT
The lamp of the charge warning unit indicates the status of charging the battery.
When the main switch is put into “ON” position, the red lamp lights.
After the engine starts, the lamp will go off.
If the charging system has malfunctioned, the lamp will light.
CHARGE WARNING UNIT APPLICATIONS
ADDITIONAL PARTS REQUIREMENTS
WIRING THE CHARGE WARNING UNIT
Description Part No. Remarks
Relay 697-81901-60 All electrical start models with a rectifier/regulator
Description Part No. Remarks
Red lamp 663-84301-01 12V
R
84 (3.31)
40 (1.57)
7.7 (0.30)
G
B
G
Y
300 (11.81)
mm (in.)
20 (0.79)
500 (19.69)
R
G
10 (0.39)42 (1.65)
mm (in.)
G
GR
Y
B
Battery
IG switch
Charge warning unit
Lamp
Lighting coil
Relay

Table of Contents

Related product manuals