EasyManua.ls Logo

Yamaha RDX-E600MK2 - Page 9

Yamaha RDX-E600MK2
33 pages
Print Icon
To Next Page IconTo Next Page
To Next Page IconTo Next Page
To Previous Page IconTo Previous Page
To Previous Page IconTo Previous Page
Loading...
DVD-E600MK2
9
DVD-E600MK2
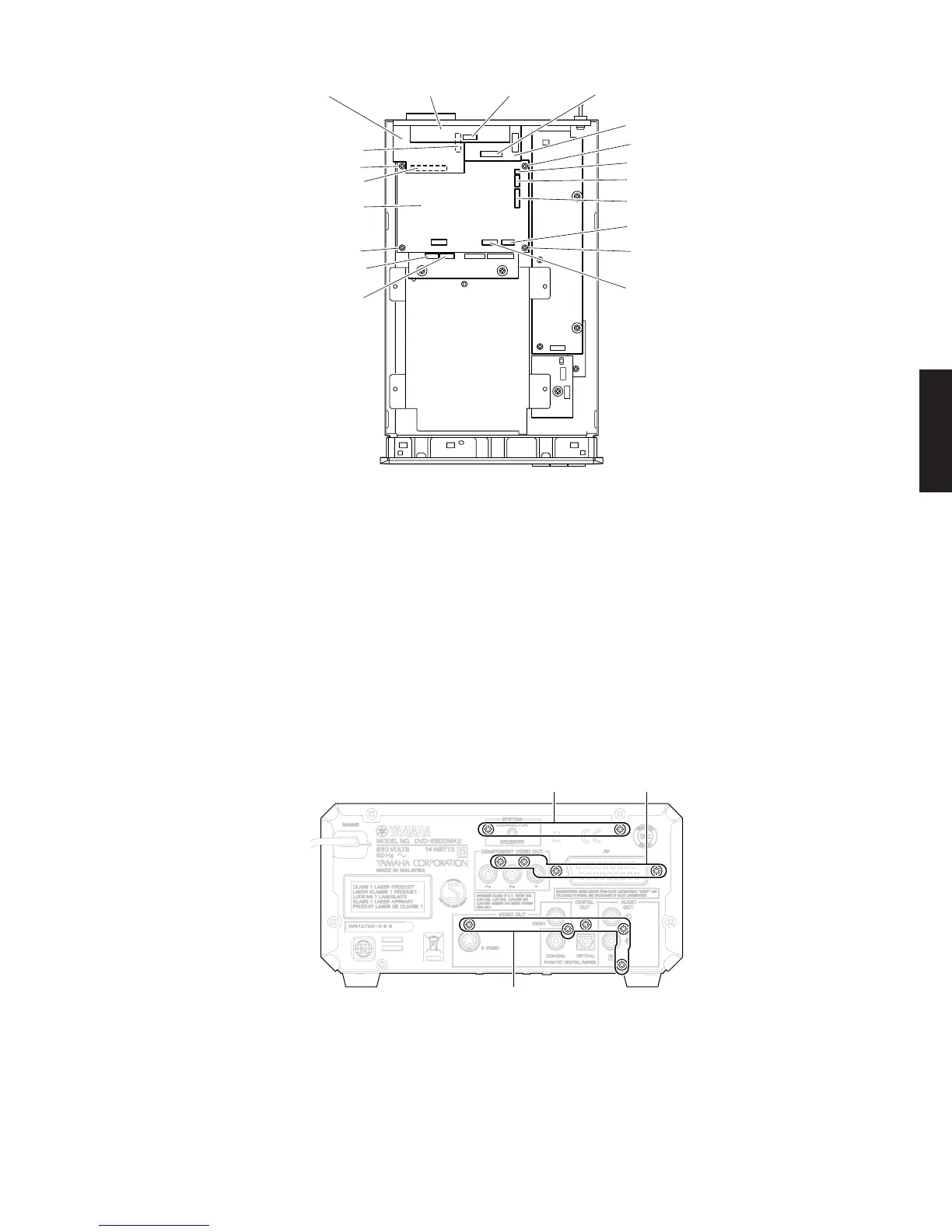
4. Removal of MAIN (3) P.C.B.
a. Remove 2 screws (6). (Fig. 4)
b. Remove a connector (CB301). (Fig. 3)
c. Remove the MAIN (3) P.C.B..
5. Removal of MAIN (2) and MAIN (4) P.C.B.
a. Remove 4 screws (7). (Fig. 4)
b. Remove a connector (CB205). (Fig. 3)
c. Remove the MAIN (2) and MAIN (4) P.C.B..
Fig. 3
Fig. 4
MAIN (4) P.C.B.
1106
1105
1104
1103
1102
MONO BOARD
CB201
MAIN (3) P.C.B. CB301 CB205MAIN (2) P.C.B.
CB17
CB16
1301
8
8
8
8
6. Removal of MONO BOARD
a. Remove 4 screws (8). (Fig. 3)
b. Remove a connectors (1102~1106, 1301). (Fig. 3)
c. Remove the MONO P.C.B..
6
9
7

Related product manuals