EasyManua.ls Logo

Yardistry AVERY - Page 7

Yardistry AVERY
40 pages
Print Icon
To Next Page IconTo Next Page
To Next Page IconTo Next Page
To Previous Page IconTo Previous Page
To Previous Page IconTo Previous Page
Loading...
7 support@yardistrystructures.com
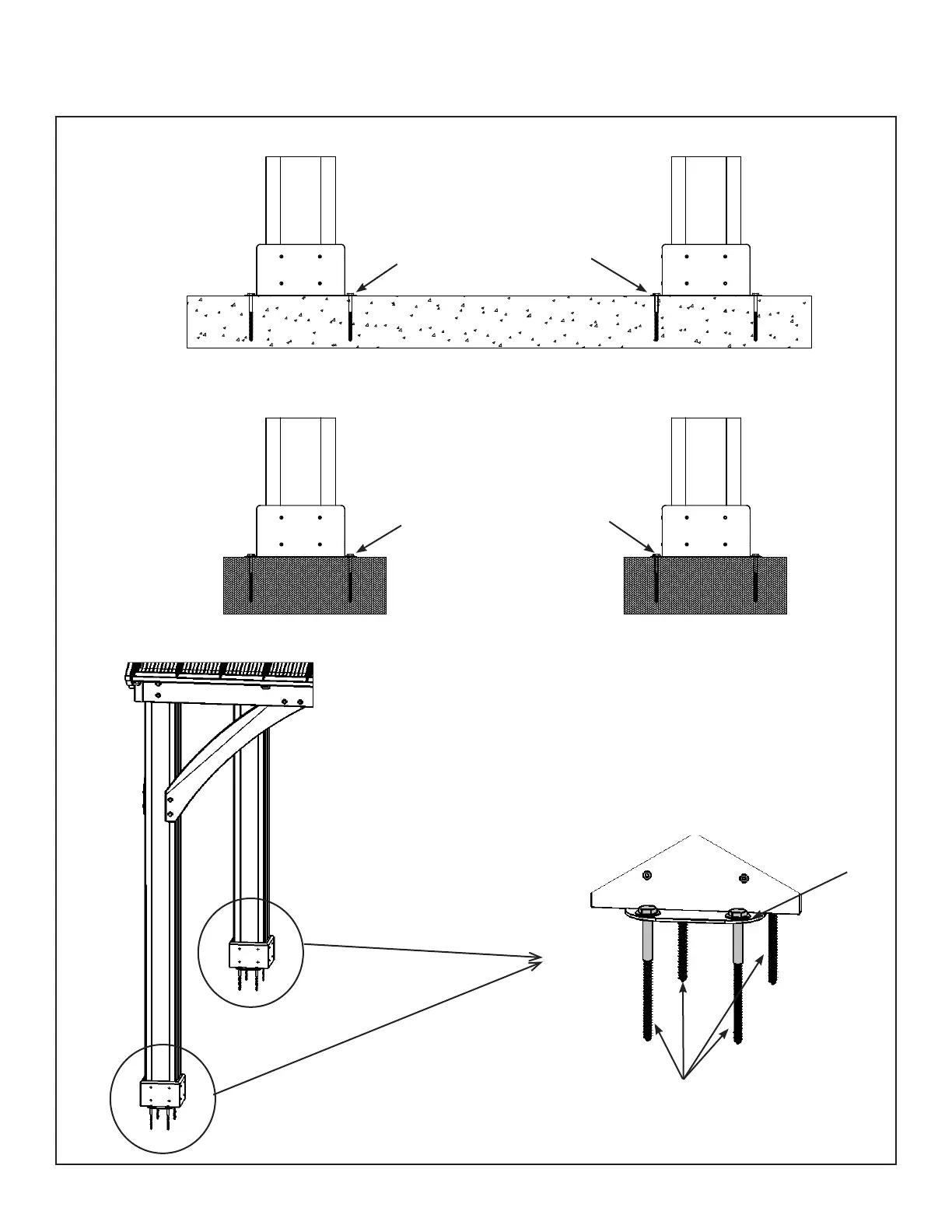
Permanent Installation Examples cont.
Concrete Patio (min. 10’ 8” x 11’) with 6” clearance on all sides
Wood Deck (min. 10’ 8” x 11’) with 6” clearance on all sides
Anchoring Hardware not included
Anchoring Hardware not included
Anchoring Hardware (not included)
Post
Mount
Post Mounts have a 1/2” diameter
hole for anchoring hardware.

Related product manuals