EasyManua.ls Logo

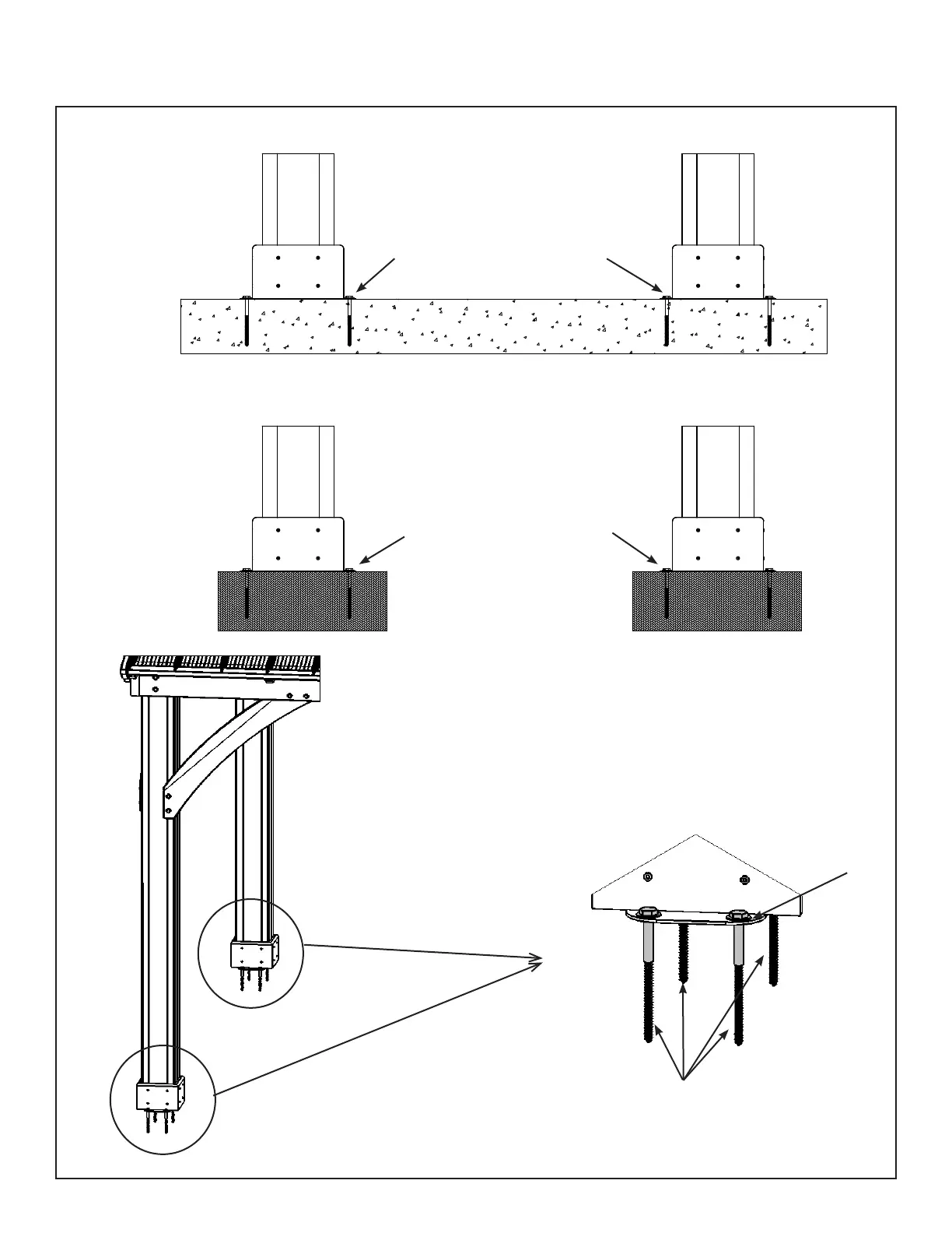
Yardistry YM12784 - Permanent Installation Examples - Continued; Concrete Patio & Wood Deck Anchoring

Yardistry YM12784
84 pages
Print Icon
To Next Page IconTo Next Page
To Next Page IconTo Next Page
To Previous Page IconTo Previous Page
To Previous Page IconTo Previous Page
Loading...
7 support@yardistrystructures.com
Permanent Installation Examples cont.
Anchoring Hardware (not included)
Post
Mount
Anchoring Hardware not included
Anchoring Hardware not included
Concrete Patio [min. 3.616 m x 7.364 m (11’ 10-3/8” x 24’ 1-15/16”)]
with 15.24 cm (6”) clearance on all sides
Wood Deck [min. 3.616 m x 7.364 m (11’ 10-3/8” x 24’ 1-15/16”)]
with 15.24 cm (6”) clearance on all sides
Post Mounts have a 12.7 mm (1/2”)
diameter hole for anchoring hardware.

Related product manuals