EasyManua.ls Logo

YASKAWA CIMR-VCBA0006

YASKAWA CIMR-VCBA0006
152 pages
Go to English
To Next Page IconTo Next Page
To Next Page IconTo Next Page
To Previous Page IconTo Previous Page
To Previous Page IconTo Previous Page
Loading...
2 Mechanische Installation
YASKAWA Europe TOMP_C710606_75A V1000 IP66 - Kurzanleitung DE 9
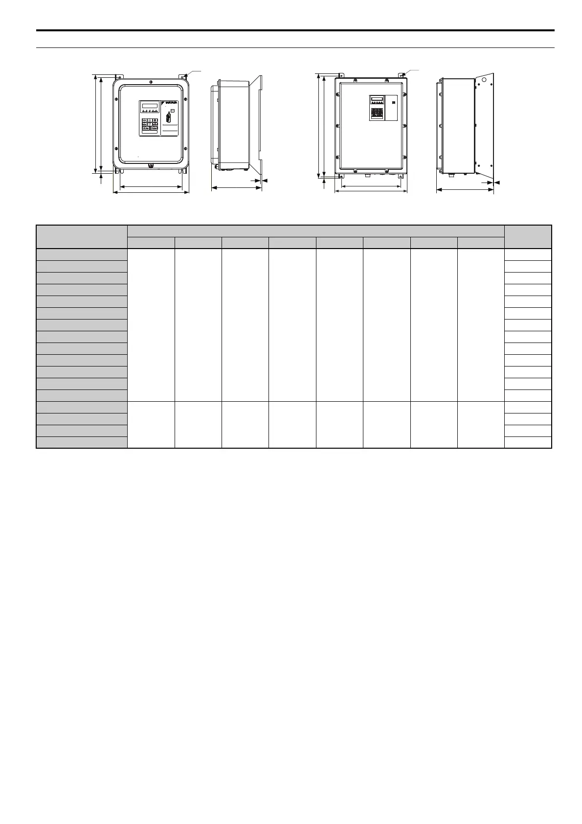
Abmessungen
Modell
CIMR-VC
Abmessungen (mm)
Gewicht
(kg)
Abb. W H D W1 H1 H2 t1
BA0001
A 262 340 173.5 214 321 9 2
4.9
BA0002 4.9
BA0003 5.1
BA0006 5.7
BA0010 5.8
BA0012 6.1
4A0001 5.2
4A0002 5.2
4A0004 5.3
4A0005 5.3
4A0007 5.7
4A0009 5.7
4A0011 6.0
4A0018
B 345 500.5 273.5 282 458.5 10 2
19.8
4A0023 19.9
4A0031 21.0
4A0038 21.3
H1
W1
H
H2
.
W
IP6 6
V 1000
Ø
6.5
D
t1
W1
W
H1
H
H2
D
t1
Abb. A
Abb. B
Ø
6.6
TOMP_C710606_75A_0_0_prePrint.pdf 11 21.12.2010 13:52:14

Related product manuals