EasyManua.ls Logo

York PREDATOR 102 - BOTTOM DUCT OPENINGS; Location and Size of Bottom Openings; REAR DUCT DIMENSIONS; Dimensions for Rear Duct Openings

York PREDATOR 102
48 pages
Print Icon
To Next Page IconTo Next Page
To Next Page IconTo Next Page
To Previous Page IconTo Previous Page
To Previous Page IconTo Previous Page
Loading...
246646-YTG-C-0606
38 Unitary Products Group
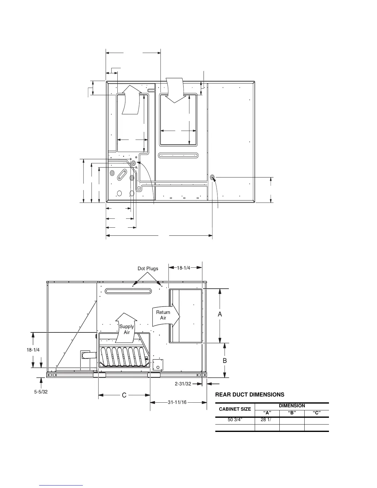
FIGURE 8 - BOTTOM DUCT OPENINGS (FROM ABOVE)
32-11/16
6-13/16
6-13/16
27-1/2
18
21-3/16
19-3/16
17-3/16
14-23/32
16-3/8
18-1/16
63-1/2
12-5/16
6-13/16
24
21
LEFT
Bottom gas
supply entry
Bottom Power,
Control and
Convenience
Outlet Wiring
Entry
SUPPLY
AIR
RETURN
AIR
FRONT
FIGURE 9 - REAR DUCT DIMENSIONS
Dot Plugs
18-1/4
5-5/32
31-11/16
2-31/32
18-1/4
Return
Air
Supply
Air
A
B
C
REAR DUCT DIMENSIONS
CABINET SIZE
DIMENSION
“A” “B” “C”
50 3/4” 28 1/4 18 1/16 28 1/4
42” 27 3/4 12 1/16 27 1/2

Table of Contents

Related product manuals