EasyManua.ls Logo

York YCAS0130 - Page 83

York YCAS0130
204 pages
To Next Page IconTo Next Page
To Next Page IconTo Next Page
To Previous Page IconTo Previous Page
To Previous Page IconTo Previous Page
Loading...
83
YORK INTERNATIONAL
FORM 201.19-NM1 (204)
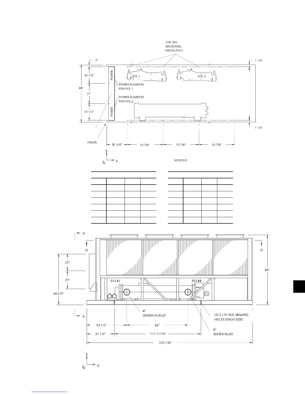
DIMENSIONS – YCAS0130 - YCAS0180 (ENGLISH)
7
LD03744
CONTROL/OPTIONS
ABCD
EFG H
LD03743
CENTER OF GRAVITY (Cop per)
YCAS X Y Z
0130 103.5" 44.4" 40.7"
0140 103.5" 44.4" 40.7"
0150 108.2" 43.0" 39.2"
0160 108.4" 43.1" 39.1"
0170 108.4" 43.1" 39.1"
0180 108.4" 43.1" 39.1"
CENTER OF GRAVITY (Alum.)
YCAS X Y Z
0130 101.3" 44.4" 37.8"
0140 101.3" 44.4" 37.8"
0150 106.7" 42.8" 36.2"
0160 107.0" 43.0" 36.2"
0170 107.0" 43.0" 36.2"
0180 107.0" 43.0" 36.2"

Table of Contents

Related product manuals