EasyManua.ls Logo

York YLAA0136 - FIGURE 23 - Micro Panel Connections

York YLAA0136
178 pages
To Next Page IconTo Next Page
To Next Page IconTo Next Page
To Previous Page IconTo Previous Page
To Previous Page IconTo Previous Page
Loading...
JOHNSON CONTROLS
78
FORM 150.72-ICOM6
ISSUE DATE: 12/29/2017
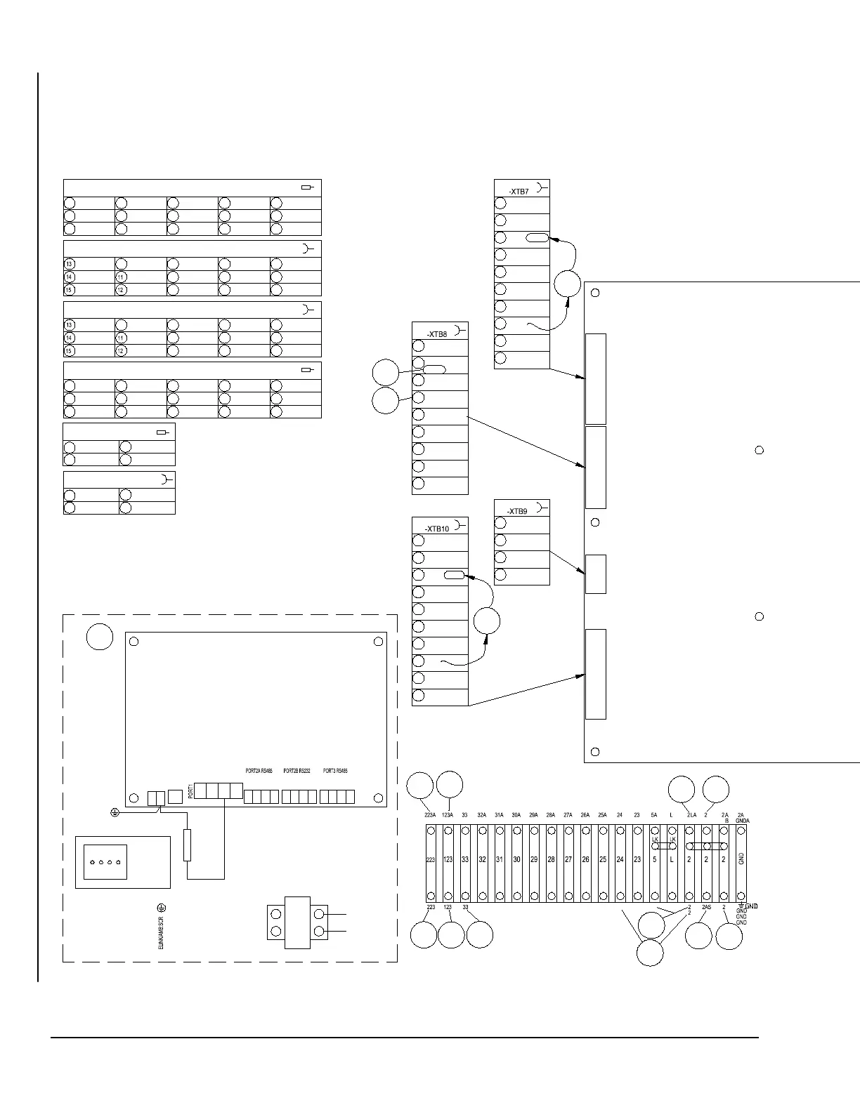
SECTION 5 – TECHNICAL DATA
MICRO PANEL CONNECTIONS
FIGURE 23 - MICRO PANEL CONNECTIONS
035-21589-102 REV M
/'
;7%&
7%
$0%
5

!$0%
!$0%
!$0%
(
1%
1%
1%
1%
1%
1% 1%
1%
1%
1%
1%
1%
1%
1%
1%
1%
$
%
&
*1'(
*1',
(
,
(
,
/(
/,
(
,
%
(
,
(
,
(
,
(
,
(
,
(
,
(
,
(
,
$0%

7%
7%
7%
7%
$
$
$
$
$
$
$

%
$
%
$$
$
%
$
$
$
$
$
$

$
%
$$

$

&
'

$
&
;3
&
. &
;3
,
%
%
(/,1.$0%5('
(/,1.$0%%/.
:+7
%/.
&20
6+'
-
6+'
5()
6+'
5()
5;
7;
6+'
5()
7%
31
&20
+27
(/,1.
(/,1.$0%%/
.
(/,1.$0%5(
'
(
,
(
,
(
,
(
,
(
,
(
,
%
%
&
%%
%%
%%
% %
%
%%
%






;3
$$$
$
$$
$ $
$
$$
$






;3
'
& $
%/.
:+7
7
% % %
% %
%
% % %
%
(
% &
%

;3
'
$ $ $
$ $ $
$ $ $
$
$
$
$ $
$

;3



Table of Contents

Related product manuals