EasyManua.ls Logo

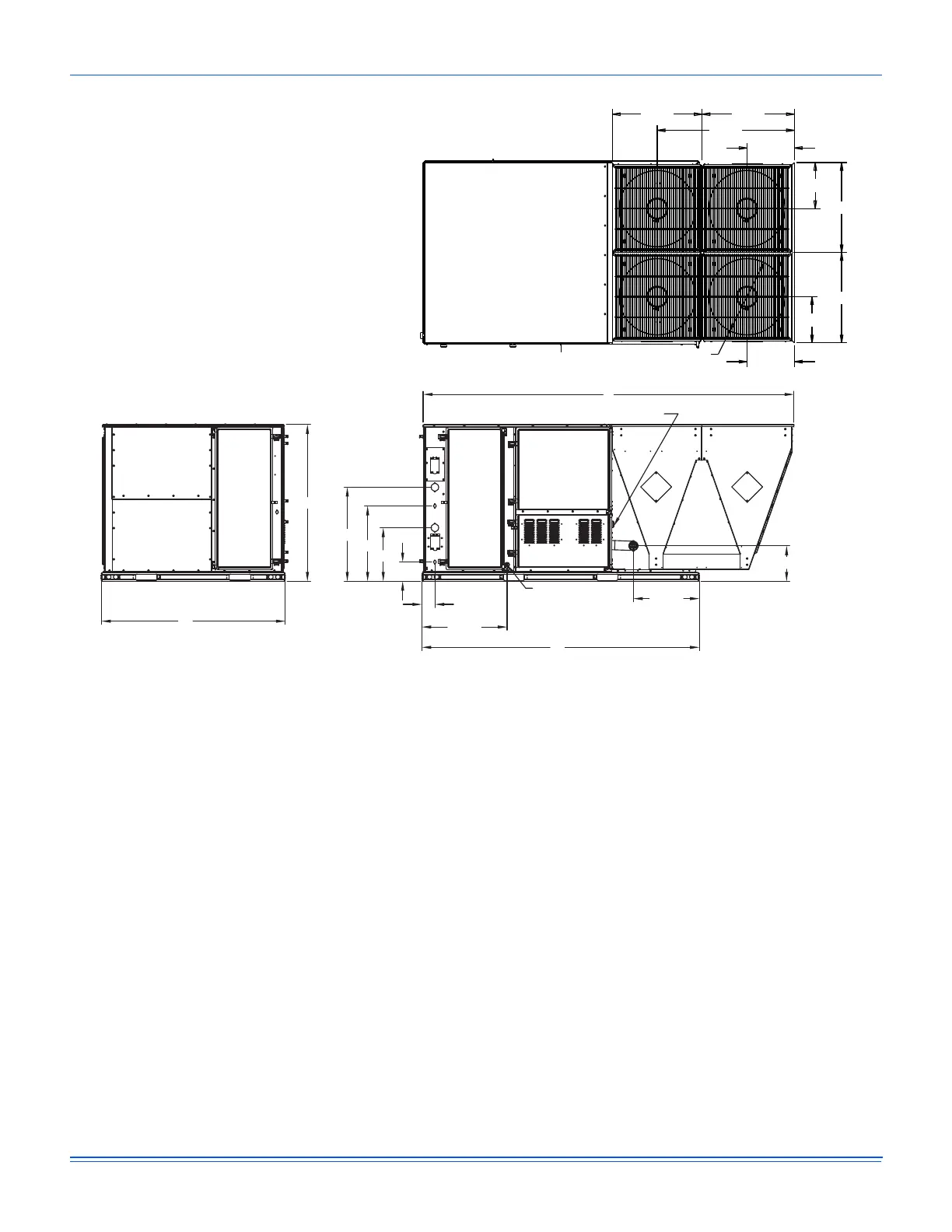
York ZWT06 - ZWT12 Physical Dimensions

York ZWT06
73 pages
Print Icon
To Next Page IconTo Next Page
To Next Page IconTo Next Page
To Previous Page IconTo Previous Page
To Previous Page IconTo Previous Page
Loading...
5565606-TIM-B-1018
10 Johnson Controls Ducted Systems
Figure 9: ZWT12 Physical Dimensions

Table of Contents

Related product manuals