EasyManua.ls Logo

Zebra 402 - Page 88

Zebra 402
90 pages
Print Icon
To Next Page IconTo Next Page
To Next Page IconTo Next Page
To Previous Page IconTo Previous Page
To Previous Page IconTo Previous Page
Loading...
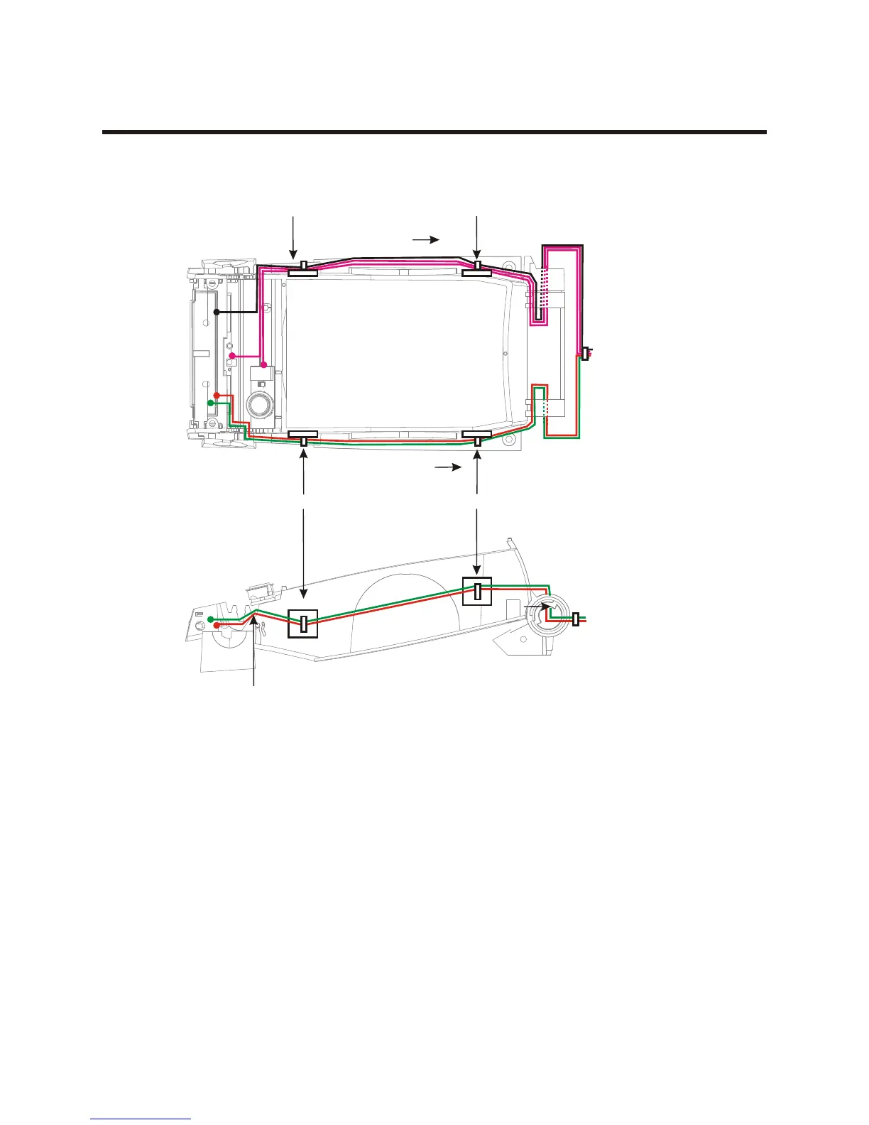
Cable Routing for LP Narrow Printers
86 980358-001 Rev. B
SIMPLIFIED WIRING DIAGRAM
Upper Frame
RIGHT SIDE
TOP
tie wrap
tie wrap
tie wrap
tie wrap
tie wrap
guide
PRINT HEAD (WHITE)
GROUND WIRE
PRINT HEAD (BLACK)
FEED / RECEIVE GAP
tie wrap

Related product manuals