EasyManua.ls Logo

Zepro T60 - Connection Diagram (Firmware 7.0-)

Default Icon
16 pages
Print Icon
To Next Page IconTo Next Page
To Next Page IconTo Next Page
To Previous Page IconTo Previous Page
To Previous Page IconTo Previous Page
Loading...
7
Drawing interpretation unless otherwise
specified.
All measures intends finished product
Title
Material
Dimension
Date
Weigh(kg)
Scale
Designer Checked by
Approved by
Stock nr.
Drawing nr.
Sheet
Size
Revision
IS0 tolerances and drawing rules
Tolerance:
Surface finish:
Welding:
1 /1
Drawn
A CARGOTEC BRAND
Used on:
ZEPRO
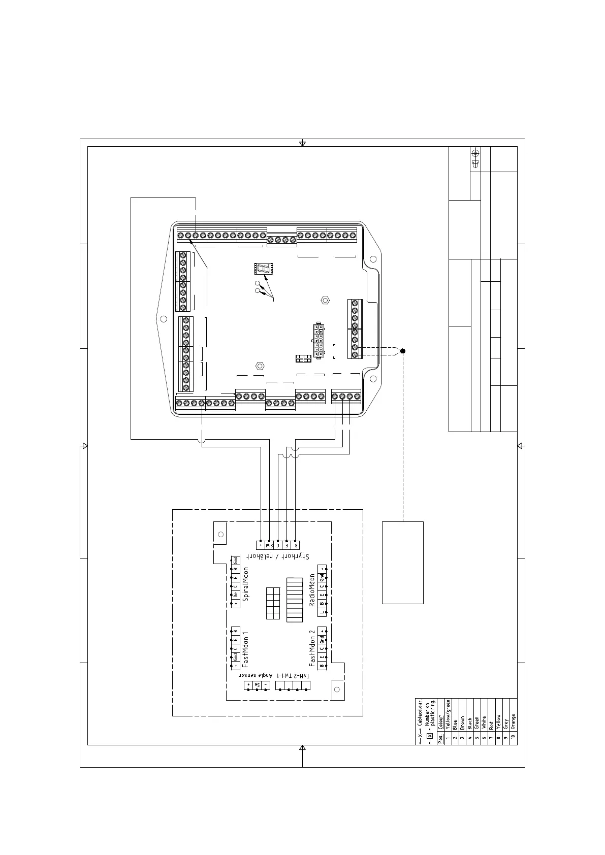
El & hydraulschema
E&H schematic
Styrkort med kopplingskort
Control card w. conn.-card
Z53275
75279TL
2016-04-29 ME ME MB PS
A3
-
-
-
1:1
Z-Lyften Produktion AB
-
-
Ctrl 4
Spiral
Ctrl 3
Radio
Ctrl 2
Ctrl 1
Control Power
Sensor Power
Ground
IN OUT
Ai 1
Ai 2
Di 1
Di 2
Di 3
Di 4
Di 5
Di 6
PA-
PA+
CSPWR
CS
+
B
E
C
2H1
B
E
C
2H2
B
E
C
Lock
B
E
C
Lock
U7
U6
U5
U4
U3
U5
U4
U2
U1
U0
Ctrl 6
Out
In
Spk-
Spk+
I-
I+
CR
CT
Ctrl 5
Indication
Se appendix in
installation manual
Outputs
Sensors
Not in use
1
1
2
2
3
3
4
4
5
5
6
6
A
B
C
D
Denna ritning är Z-Lyftens egendom och skyddad enligt internationellt gällande lag för copyright
och får ej utan Z-Lyftens skriftliga medgivande kopieras, delges eller obehörigen användas.
This drawing is property of Z-Lyften Produktion AB and is loaned subject to return upon demand. It is not
to be reproduced or used directly or indirectly in any way detrimental to the interest of Z-Lyften Produktion AB.
Man.don 5 Släde /
Controller 5 Sled
2
8
3
4
6
För anslutning av manöverdon mot
kopplingskort, se ritning Z47616 /
For connection of control devices to the
connection card, see drawing Z47616
5. Electric- and hydraulic diagram
Connection of connection card to ZePro1 controlercard
Connection card is required when connecting Radio on ZePro1 controler card with rmware 7.0 or earlier.