EasyManua.ls Logo

Zivan C38971 - Principe de Fonctionnement; Schéma de Principe

Zivan C38971
Print Icon
To Next Page IconTo Next Page
To Next Page IconTo Next Page
To Previous Page IconTo Previous Page
To Previous Page IconTo Previous Page
Loading...
Français Chargeur de Batterie NG5-7-9
20 D01274-03
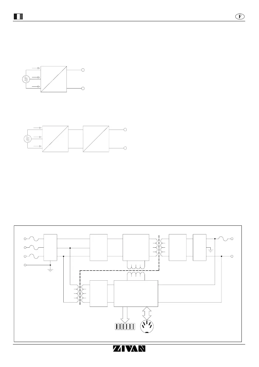
Principe de fonctionnement
Le chargeur de batterie a des conséquences considérables sur les performances et sur la durée de la
batterie, et c'est la raison pour laquelle il est une partie fondamentale de tous les véhicules électriques.
Un chargeur de batterie non contrôlé traditionnel (redresseur) effectue une simple conversion AC/DC
directe.
Les principaux inconvénients de cette solution sont:
Bas rendement
Grandes dimensions
Long temps de charge
Dépendance de la charge de la variation de la tension du
secteur ( danger de surcharges dans la phase de charge
finale).
Pour faire face à cet inconvénient, on a recourt, dans les chargeurs de batterie modernes à une
conversion AC/DC indirecte en passant par une conversion DC/DC intermédiaire.
Ce mode opératoire est typique des
alimentations à commutation (switching)
de grandes puissances.
Disposant des interrupteurs toujours plus
rapides et plus puissants (technologie
moderne), cette solution permet d'obtenir
de bonnes prestations avec des
dimensions et des coûts limités.
Les principaux avantages de cette solution sont:
Rendement élevé
Dimensions réduites
Temps de charges réduits
Charge indépendante des variations de la tension secteur
Contrôle électronique qui permet d'obtenir la courbe de charge désirée
L'apparition de perturbations électriques (dues à la commutation des composants) à imposée
l'introduction d'un filtrage adéquat pour satisfaire aux directives EMC 89/336 CEE sur la compatibilité
électromagnétique.
Schéma de principe
F0
F2
F4
E
T
S
R
PUISSANCE
ETAGE
DE
F1
CONTROLE
DE
LOGIQUE
FILTRE
FILTRE
FILTRE
REDRES.
REDRES.
REDRES.
ET
ET
ET
EMI EMI
FILTRE FILTRE
Batteria
i
i
i
v
DC
AC
Batteria
i
i
i
v
DC
DC
DC
A
C

Related product manuals