EasyManua.ls Logo

3M 9080 - Arm and Focus Assembly

3M 9080
64 pages
Print Icon
To Next Page IconTo Next Page
To Next Page IconTo Next Page
To Previous Page IconTo Previous Page
To Previous Page IconTo Previous Page
Loading...
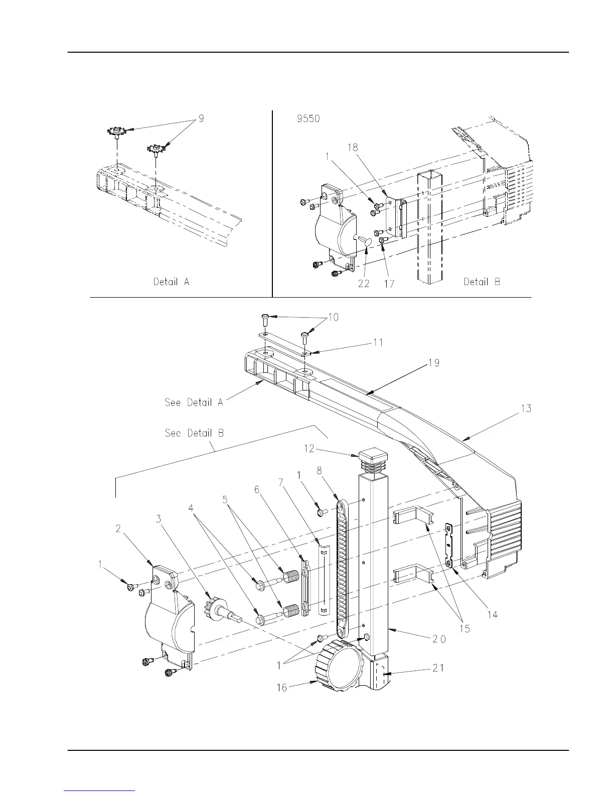
Illustrated Parts Breakdown3MtOverhead Projector 9000 Series
7--12
E 3M 2000
Section 4
ARM AND FOCUS ASSEMBLY
9200, 9400, 9550

Related product manuals