EasyManua.ls Logo

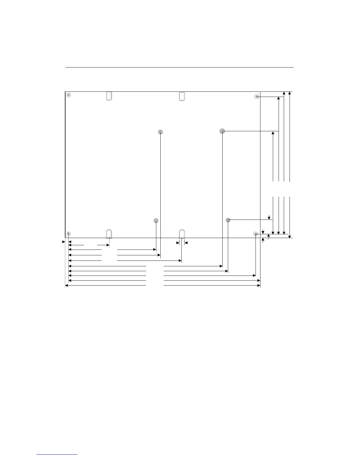
Aaeon PCM-5896 - Board Dimensions

Aaeon PCM-5896
130 pages
Print Icon
To Next Page IconTo Next Page
To Next Page IconTo Next Page
To Previous Page IconTo Previous Page
To Previous Page IconTo Previous Page
Loading...
8 PCM-5896 User Manual
5.08
40.64
97.16
100.97
119.38
3.56
174.63
177.17
193.04
203.20
198.12
5.08
9.53
135.89
95.25
146.05
140.97
Board dimensions
PCM-5896 dimensions
dimensions in mm

Table of Contents

Related product manuals