EasyManua.ls Logo

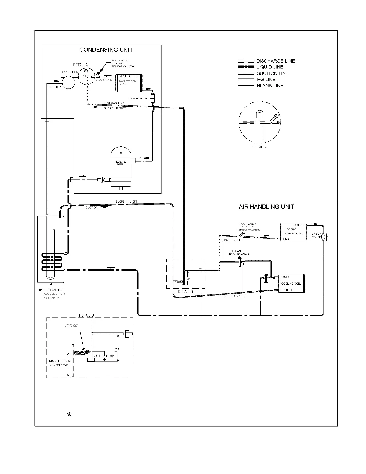
AAON CL SERIES - Figure 19 - Reheat;Hot Gas Bypass Piping Diagram with Air Handler below Condenser and Field Installed; Suction Line Accumulator

AAON CL SERIES
60 pages
Print Icon
To Next Page IconTo Next Page
To Next Page IconTo Next Page
To Previous Page IconTo Previous Page
To Previous Page IconTo Previous Page
Loading...
53
Figure 19 - Reheat/Hot Gas Bypass Piping Diagram with air handler below condenser and field installed
suction line accumulator
Note: Components shown within air
handler and condensing unit are factory
installed; all other components are field
installed.
TO BE INSTALLED IN FIELD

Table of Contents

Other manuals for AAON CL SERIES

Related product manuals