EasyManua.ls Logo

ABB ACH580-PDR - Page 22

ABB ACH580-PDR
257 pages
Print Icon
To Next Page IconTo Next Page
To Next Page IconTo Next Page
To Previous Page IconTo Previous Page
To Previous Page IconTo Previous Page
Loading...
ACH580 E-Clipse bypass and packaged drive user manual 13
Installation
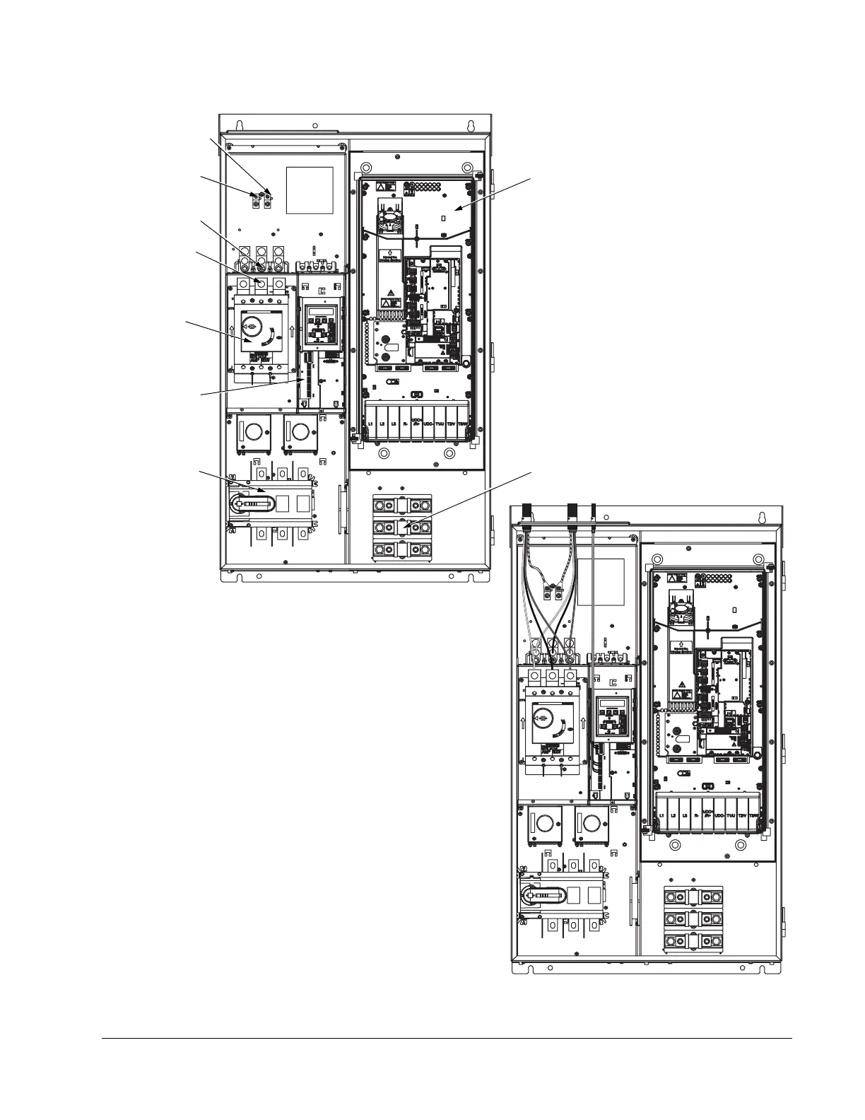
B3
Units above 77A
ACH580 Drive
Disconnect
Service Switch
(Optional)
E-Clipse Bypass
Control Board
Terminals X2
Motor
Ground Lug
Input
Terminals
Fuses
Input
Ground Lug
Motor
Terminals
Switch or
Circuit Breaker
(Bx1-3, Bx12-3*)
*Hood and filter kit not shown

Table of Contents

Other manuals for ABB ACH580-PDR

Related product manuals