EasyManua.ls Logo

ABB ACH580-PDR - Page 241

ABB ACH580-PDR
257 pages
To Next Page IconTo Next Page
To Next Page IconTo Next Page
To Previous Page IconTo Previous Page
To Previous Page IconTo Previous Page
Loading...
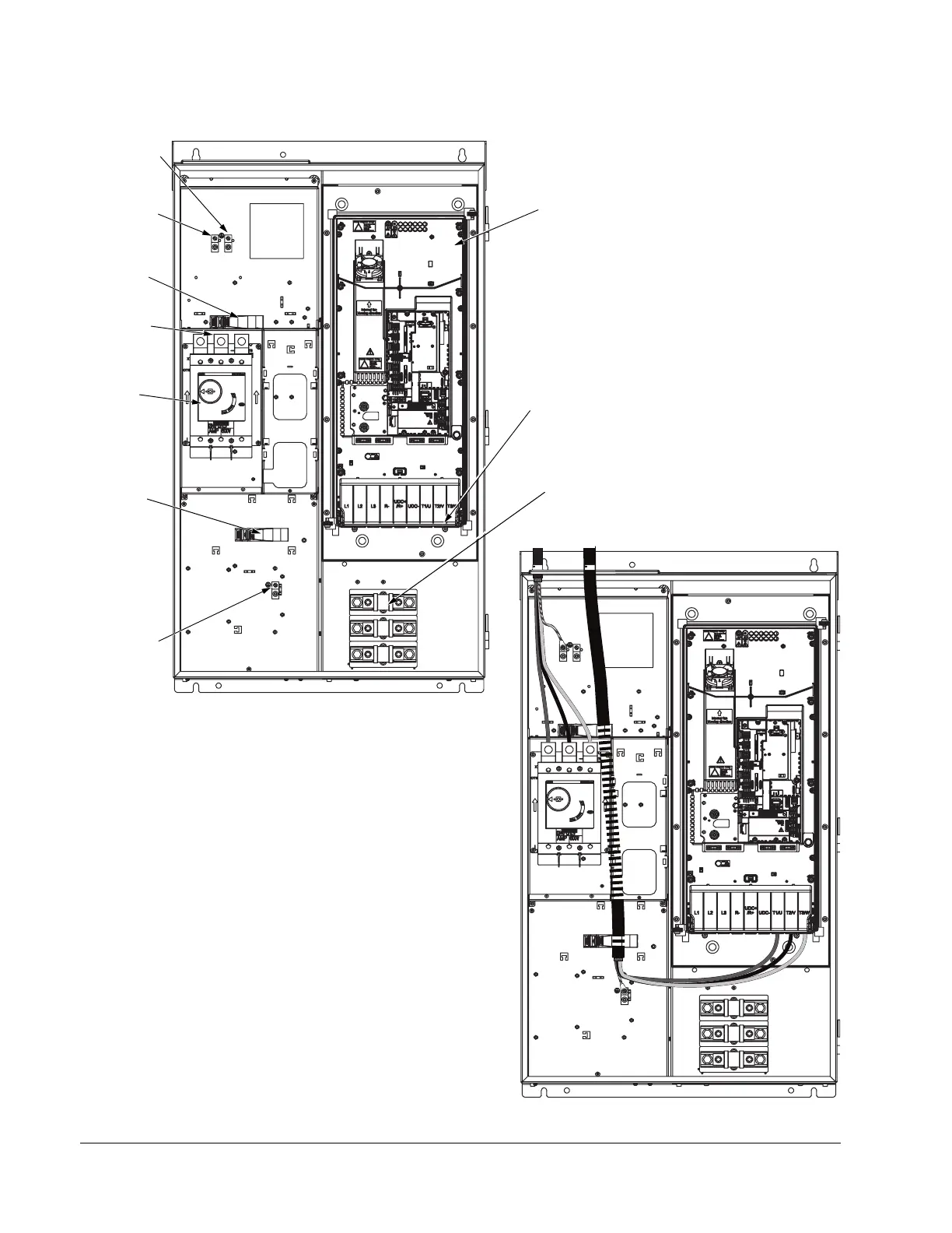
232 ACH580 E-Clipse bypass and packaged drive user manual
Installation
PB3
(PxB1-3, PxB12-3)
ACH580 Drive
Disconnect
Motor
Ground Lug
Input
Terminals
Fuses
Input
Ground Lug
Motor
Terminals
Switch or
Circuit
User
Power Cable
Guide
Breaker
User
Power Cable
Guide
Motor
Ground Lug

Table of Contents

Other manuals for ABB ACH580-PDR

Related product manuals