EasyManua.ls Logo

ABB ACS880-04XT - Page 269

ABB ACS880-04XT
664 pages
To Next Page IconTo Next Page
To Next Page IconTo Next Page
To Previous Page IconTo Previous Page
To Previous Page IconTo Previous Page
Loading...
Parameters 269
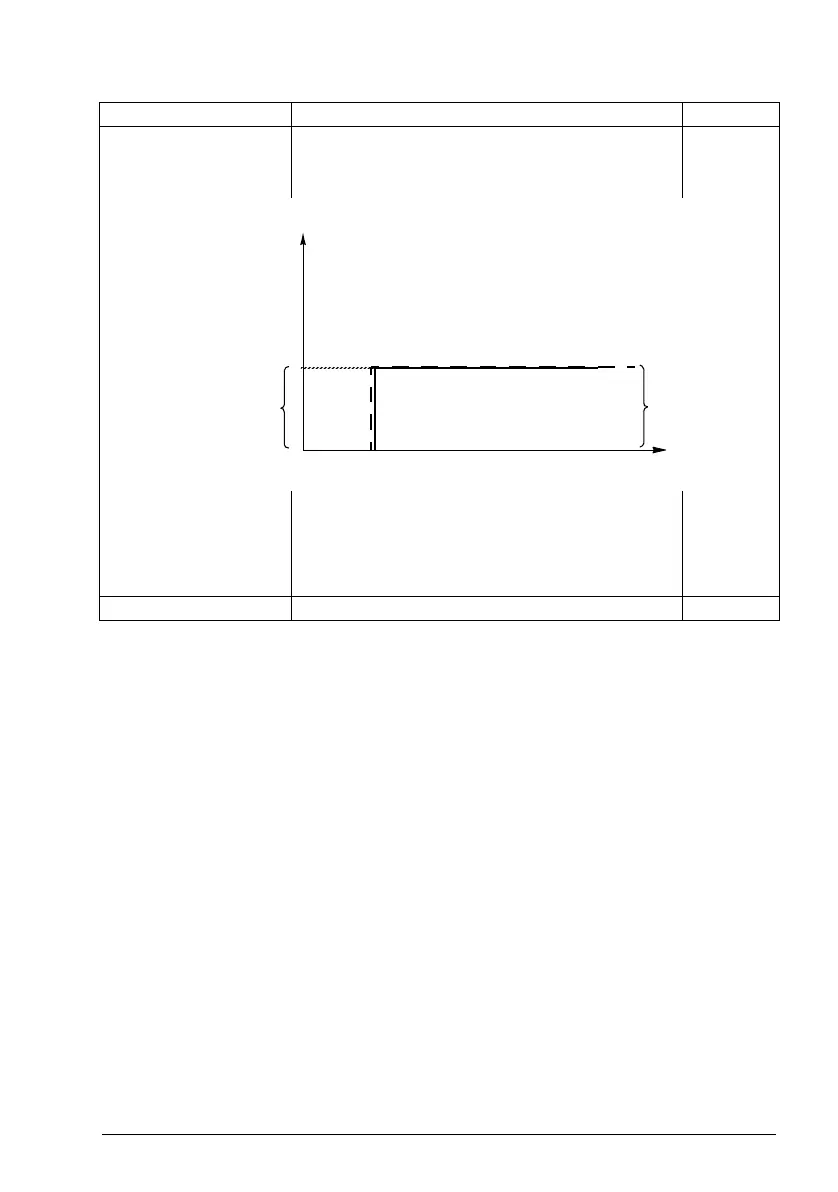
25.02 Speed proportional
gain
Defines the proportional gain (K
p
) of the speed controller. Too
high a gain may cause speed oscillation. The figure below
shows the speed controller output after an error step when
the error remains constant.
10.00;
5.00
(95.21 b1/b2)
If gain is set to 1.00, a 10% error (reference - actual value) in
the motor synchronous speed produces a proportional term of
10%.
Note: This parameter is automatically set by the speed
controller autotune function. See section Speed controller
autotune (page 81).
0.00 …250.00 Proportional gain for speed controller. 100 = 1
No. Name/Value Description Def/FbEq16
Gain = K
p
= 1
T
I
= Integration time = 0
T
D
= Derivation time = 0
%
Controller
output = K
p
×e
Time
e = Error value
Controller output
E

Table of Contents

Other manuals for ABB ACS880-04XT

Related product manuals