EasyManua.ls Logo

ABB AMVAC - Page 28

ABB AMVAC
50 pages
Print Icon
To Next Page IconTo Next Page
To Next Page IconTo Next Page
To Previous Page IconTo Previous Page
To Previous Page IconTo Previous Page
Loading...
28
1VAL050601-MB Rev C
APPENDIX B
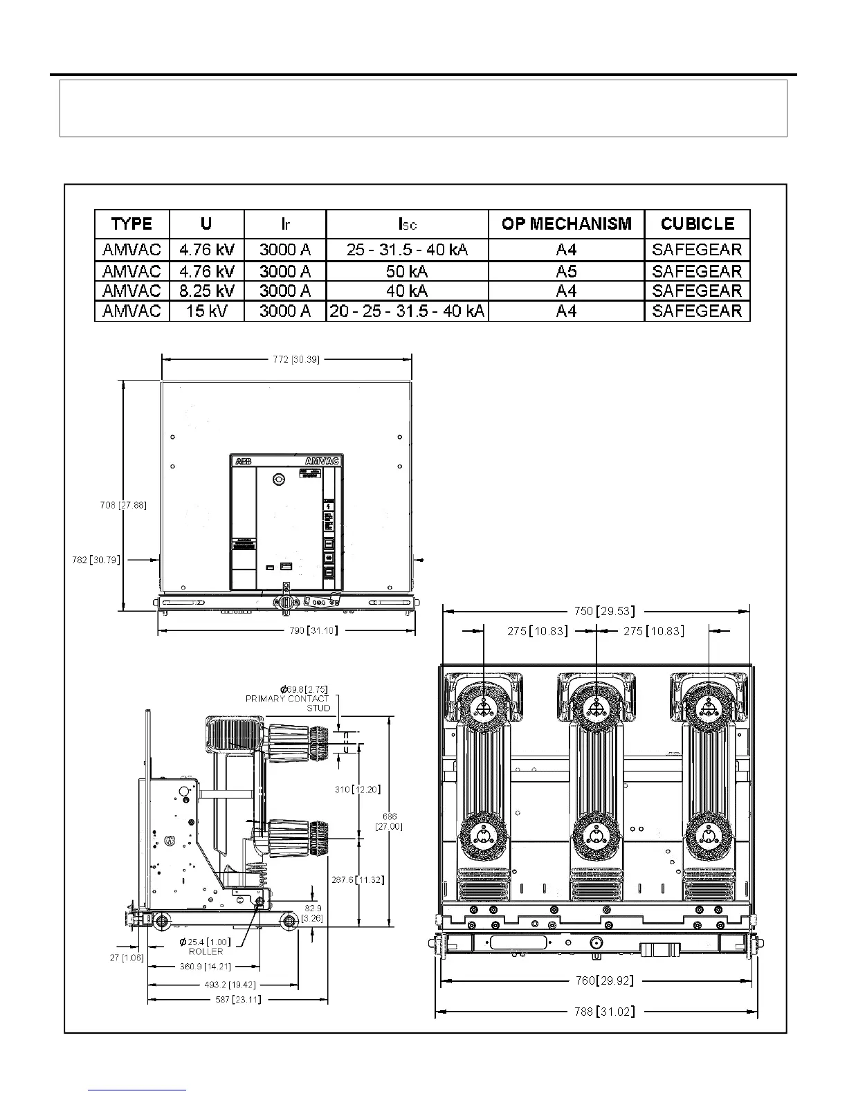
BASIC BREAKER DIMENSIONS AND WEIGHTS
APPENDICES
All AMVAC
TM
circuit breakers of this style have the same basic dimensions (i.e. pole spacing) regardless of pole
configuration.
Provided by Northeast Power Systems, Inc. (NEPSI)

Other manuals for ABB AMVAC

Related product manuals