EasyManua.ls Logo

ABB AV2 - Page 81

ABB AV2
126 pages
Print Icon
To Next Page IconTo Next Page
To Next Page IconTo Next Page
To Previous Page IconTo Previous Page
To Previous Page IconTo Previous Page
Loading...
SUPPORT SERVICES
ADDITIONAL SPARE PARTS
9 - 11
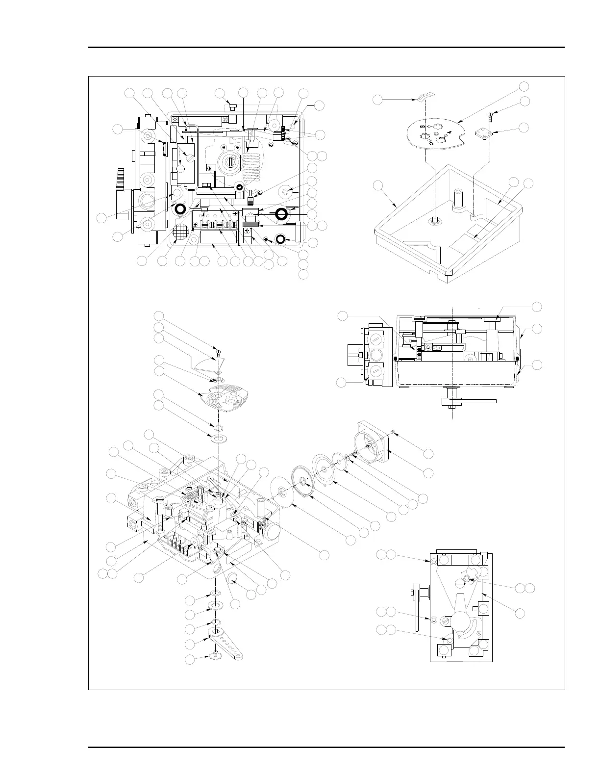
Figure 9-3. Type AV1 Positioner
T00783A
SIDE VIEW
O1 O2
O2
O1
I
I
S
65
65
65
65
66
66
67
67
17
FRONT VIEW
37
41
40
2
1
12345
VIEW WITH COVER REMOVED
INSIDE OF COVER
43
81
10
26 58
56 49
59
12 8
352
4 45
16
13 6
7
42
11
82 94
64
5
81
61
9
86
58
58
15
44
70
75
39
38
82
43
81
2
36
13
74
96
87
88
51
19
55
32
30
13
31
62
18
68
28
7
20
24
22
73
23
54
53
25
47
28
14
35
69
2
44
44
43
72
50
9
46
93
48
1
33 71
31
32
63
34

Table of Contents

Other manuals for ABB AV2

Related product manuals