EasyManua.ls Logo

ABB Excount II - 3.5 Sensor Alternative 2 Installation

ABB Excount II
80 pages
Print Icon
To Next Page IconTo Next Page
To Next Page IconTo Next Page
To Previous Page IconTo Previous Page
To Previous Page IconTo Previous Page
Loading...
27
1HSA 801 080-15en EXCOUNT-II Users Manual
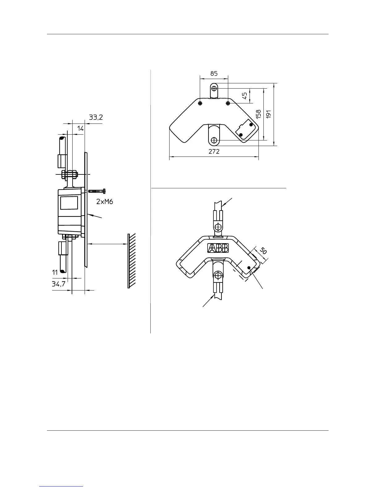
3. Sensor installation
3.5 Installation of sensor alternative 2
NOTE! Resistive current measurement is not supported with this special
application.
Mount EXCOUNT-II against planar surface. Use 2 X M6 bolts.
Connect upper terminal to flange, bottom terminal to earth via conductor.
Recommended screw: M12. Do not mount on earthed plate.
Antenna area, min
distance to groundplane:
60 mm
Planar surface
Connect to earth
terminal on surge
arrester flange
Connect to earth
Min 60 mm
to ground
plane
Figure 3.5.1
Side view
Figure 3.5.2
Back view
Figure 3.5.3
Front view