EasyManua.ls Logo

ABB PSTX250 - Page 27

ABB PSTX250
188 pages
Print Icon
To Next Page IconTo Next Page
To Next Page IconTo Next Page
To Previous Page IconTo Previous Page
To Previous Page IconTo Previous Page
Loading...
1SFC132081M0201 | Installation and commissioning manual | Description 27
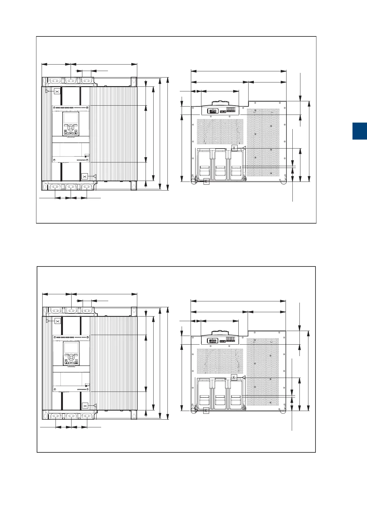
PSTX720...PSTX840
PSTX1050
304.5 mm (11.9 in)
515 mm (20.2 in)
505 mm (19.8 in)
430 mm (16.9 in)
72(2x) mm
(2.8 in)
72(2x) mm
(2.8 in)
133.5(2x) mm
(5.2 in)
301.5 mm (11.8 in)
40 (6x) mm
(1.5 in)
260 mm (10.2 in) 85.6 mm
(3.37 in)
84.4 mm
(3.3 in)
62.6 (6x) mm (in)
8 (6x) mm
(0.3 in)
366.5 mm (14.4 in)
62 mm (2.4 in)
152 (2x) mm (5.9 in)
39 mm
(1.5 in)
172 mm (6.7 in)
435 mm (17.1 in)
173.4 mm (6.8 in)261.6 mm (10.2 in)
46.5 mm
(1.8 in)
Figure 3.7
Dimensions PSTX720..840
Figure 3.8
Dimensions PSTX1050
304.5 mm (11.9 in)
515 mm (20.2 in)
505 mm (19.8 in)
430 mm (16.9 in)
72(2x) mm
(2.8 in)
72(2x) mm
(2.8 in)
133.5(2x) mm
(5.2 in)
301.5 mm (11.8 in)
40 (6x) mm
(1.5 in)
260 mm (10.2 in) 85.6 mm
(3.37 in)
84.4 mm
(3.3 in)
62.6 (6x) mm (in)
8 (6x) mm
(0.3 in)
366.5 mm (14.4 in)
62 mm (2.4 in)
152 (2x) mm (5.9 in)
39 mm
(1.5 in)
172 mm (6.7 in)
435 mm (17.1 in)
173.4 mm (6.8 in)261.6 mm (10.2 in)
46.5 mm
(1.8 in)
3

Related product manuals