EasyManua.ls Logo

ABB PSTX85 - Application Wiring Diagrams

ABB PSTX85
188 pages
Print Icon
To Next Page IconTo Next Page
To Next Page IconTo Next Page
To Previous Page IconTo Previous Page
To Previous Page IconTo Previous Page
Loading...
1SFC132081M0201 | Installation and commissioning manual | Wiring and application diagrams 171
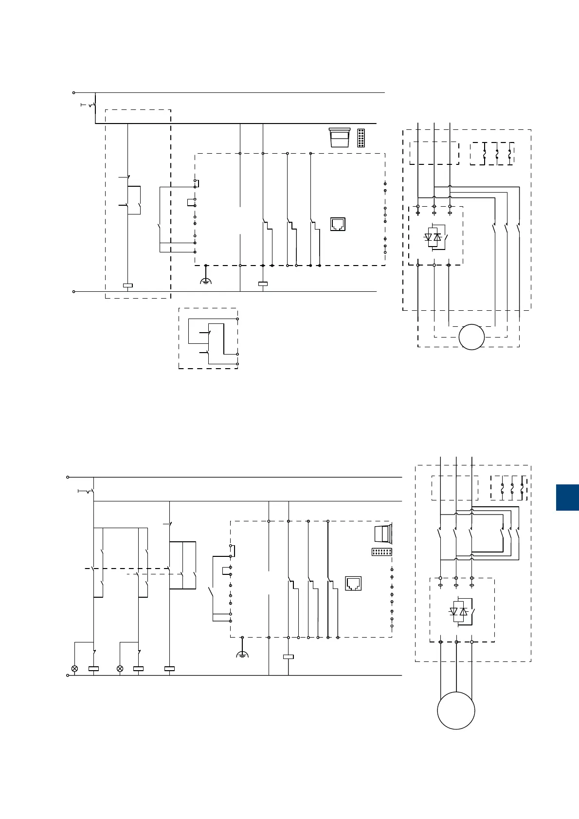
11.2 Application diagrams
11.2.1 Inside Delta
11.2.2 Start at optional direction
1
K7
K7
Default:Top of ramp
Default: Run
Default: Event
Alt. with fuses
F1.1
.2 .3
So Starter
PSTX
47
10
K4 K5
K6
Com 3
HMI
30 GND
29 +
28 +24V
27 T3
26 T2
25 T1
24 -(A)
23 +(B)
Temp In
Analog out
Com 1
Com 2
Anybus
O/I
2-wire control
K3
13 Start
22
14 Stop
15 In0
16 In1
100-250V
50/60 Hz
17 In2
18
DGND
19 GND
+ 24V
2
5
8
11
9
612
21
20
W1
V1
U1
K3
2/T1 1/L1
4/T2
3/L2
6/T3
5/L3
W2
V2
U2
1L1
3L2 5L3
6T32T1 4T2
PSTX
5L3
1L1
3L2
13 Start
14 Stop
20 +24V
3-wire control
E
O
E
I
E
O
E
I
K7
M
1
O/I
S22
K21
K22
K22
K21
K7
Default:Top of ramp
Default: Event
K12
H1
H2
Forward
Reverse
Stop
Sostarter
PSTX
47
10
K4 K5
K6
Com 3
HMI
30 GND
29 +
28 +24V
27 T3
26 T2
25 T1
24 -(A)
23 +(B)
Temp In
Analog out
Com 1
Com 2
Anybus
E
I
E
II
E
O
Alt. with fuses
.2 .3
F1.1
1L1
3L2 5L3
K21
2/T1 1/L1
4/T2
3/L2
6/T3
5/L3
K22
2/T1 1/L1
4/T2
3/L2
6/T3
5/L3
W1
V1
U1
6T32T1 4T2
13 Start
22
14 Stop
15 In0
16 In1
17 In2
18
DGND
19 GND
+ 24V
2
5
8
11
9
612
21
20
6T32T1 4T2
PSTX
5L3
1L1
3L2
S21
K7
K7
K21
K12
K22
K12
Default: Run
100-250V
50/60 Hz
M
Inside Delta can be used with a lower rated Softstarter than for Inline. Parameter 01.01 Motor rated current Ie = 58%
of the Motor rated current listed in the Motor number plate. Coil consumption for Inside Delta contactor, Pull-in max
15A, Holding max 1.5 A. If the pull-in or holding values are higher, the Inside Delta contactor must be controlled via an
auxillary contactor.
Start at optional direction must be used to achieve the ability to run the motor at full speed both forward and reverse.
Before changing direction, motor must be stopped.
11

Related product manuals