EasyManua.ls Logo

ABB REM615 B - Page 870

ABB REM615 B
896 pages
To Next Page IconTo Next Page
To Next Page IconTo Next Page
To Previous Page IconTo Previous Page
To Previous Page IconTo Previous Page
Loading...
X
8
X
9
X
7
X
3
X
6
X
5
X
1
5
X 24
1
2
3
X 16
3 2 1
1
2
3
GUID-FDC31D60-8F9F-4D2A-A1A2-F0E57553C06B V1 EN
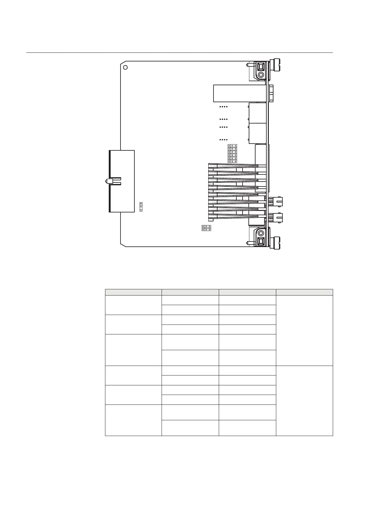
Figure 467: Jumper connectors on communication module
Table 684: 2-wire EIA-485 jumper connectors
Group
Jumper connection Description Notes
X3
1-2 A+ Bias enabled COM1
2-wire connection
2-3 A+ Bias Disabled
X5
1-2 B- Bias enabled
2-3 B- Bias Disabled
X6
1-2
Bus termination
enabled
2-3
Bus termination
disabled
X7
1-2 B- Bias enabled COM2
2-wire connection
2-3 B- Bias Disabled
X8
1-2 A+ Bias enabled
2-3 A+ Bias Disabled
X9
1-2
Bus termination
enabled
2-3
Bus termination
disabled
Section 13 1YHT530004D05 D
IED physical connections
864 615 series
Technical Manual

Table of Contents

Related product manuals