EasyManua.ls Logo

ABB Sentry BSR23 - 7 Application Connections; Connection Examples

ABB Sentry BSR23
32 pages
Print Icon
To Next Page IconTo Next Page
To Next Page IconTo Next Page
To Previous Page IconTo Previous Page
To Previous Page IconTo Previous Page
Loading...
16 2TLC010062M0201 Rev.F
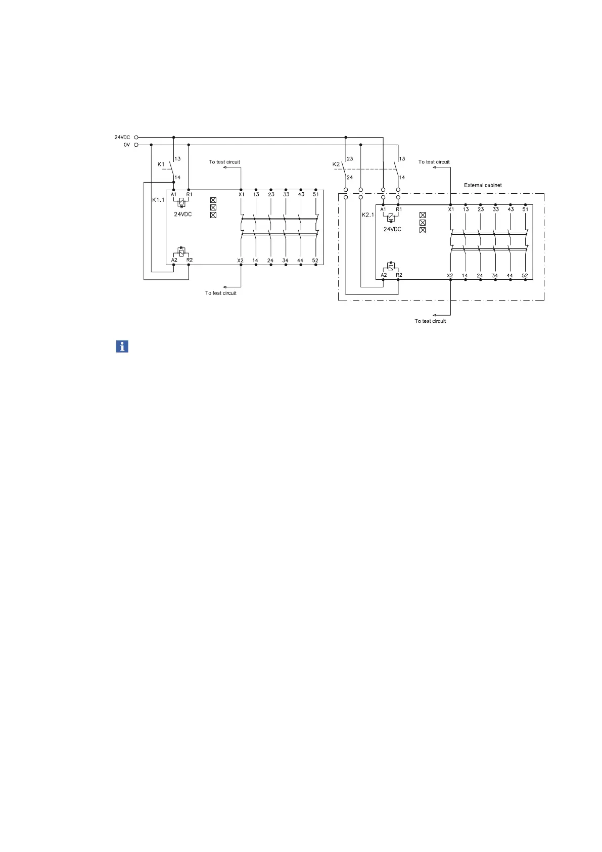
7 Application connections
7.1 Connection examples
BSR23SENTRY
CH1
OU
T
CH2
BSR23SENTRY
CH1
OUT
CH2
Note!
Always use transient suppressors when inductive loads are connected
to the relay outputs.

Related product manuals