EasyManua.ls Logo

Abloy DB001 - Program Switch, Motor Lock and Safety Sensor in the Opening Side of the Door

Abloy DB001
48 pages
Print Icon
To Next Page IconTo Next Page
To Next Page IconTo Next Page
To Previous Page IconTo Previous Page
To Previous Page IconTo Previous Page
Loading...
34
0 VDC
24 VDC
Presence impulse
Not in use
Presence detection
Not in use
Not in use
Blue
Grey
1
2
3
4
5
6
7
8
White
Red
Black
Yellow
Green
Red
EL490 Motor lock
EL590 Motor lock
26
27
28
32
31
30
29
TB4
5678
TB2
91011121314
FS
ON
12345678
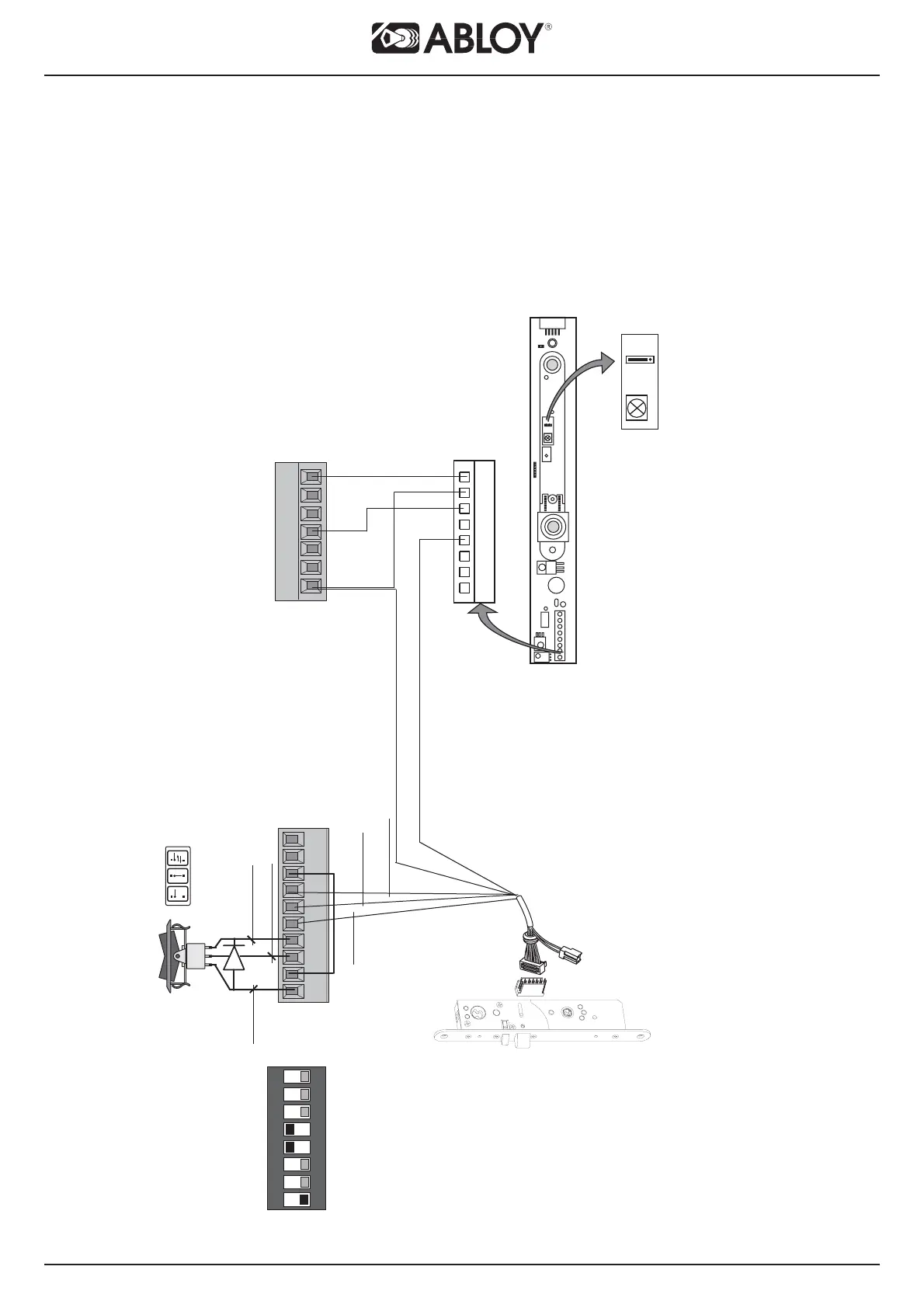
Operation:
When operator receives opening impulse, the motor lock gets opening impulse from TB2:9. When bolt is inside lockcase operator
opens the door. The dip switch FS5 keeps motor lock open until door starts closing cycle. If there is an obstacle behind door, safety
sensor stops door movement.
CONTROL UNIT EXTENSION UNIT EXB-FI
CONNECTION EXAMPLES
CONTROL UNIT AND
EXTENSION UNIT EXB-FI
Program switch, motor lock and safety sensor in the opening side of the door
NOTE!
FS1 = OFF
FS4 = ON
FS5 = ON
Jumper setting
(DARK ON)
for DA001/DA002.

Related product manuals